вИЛЛЫ С ХАРАКТЕРОМ

Современные стильные коттеджи по четырем проектам – «Феникс», «Омега», «Орион» и «Гамма» – совмещают в себе максимум простора, уюта и функциональности. Простые линии, премиальные материалы, светлые помещения и большие террасы – все это отличает новые виллы и делает их запоминающимися. Дома расположены в КП Миллениум Парк и сохраняют быстрый доступ к центральным локациям поселка. Здесь комфортно и уютно, а близость благоустроенных парков и каналов только усиливает ощущение спокойной жизни на природе.

4
дома

варианты домов 

314,86 кв.м,15 соток

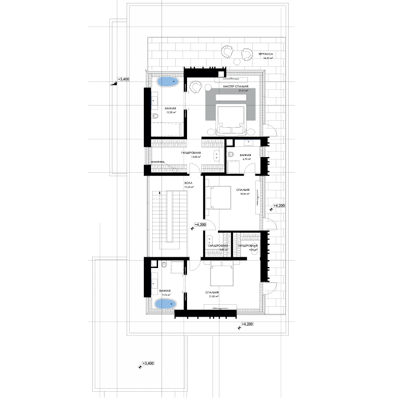
Омега

Двухэтажный коттедж в современном стиле с панорамным остеклением, террасой и гаражом на два автомобиля. В отделке фасада использован керамогранит разных цветов — белый, серый, под мрамор и под кортен, а также алюмокомпозит и планкен. В темное время суток красоту дома подчеркивает точечная архитектурная подсветка.

160 млн. руб

ПЛАНИРОВКИ ДОМА «ОМЕГА»

400,29 кв.м

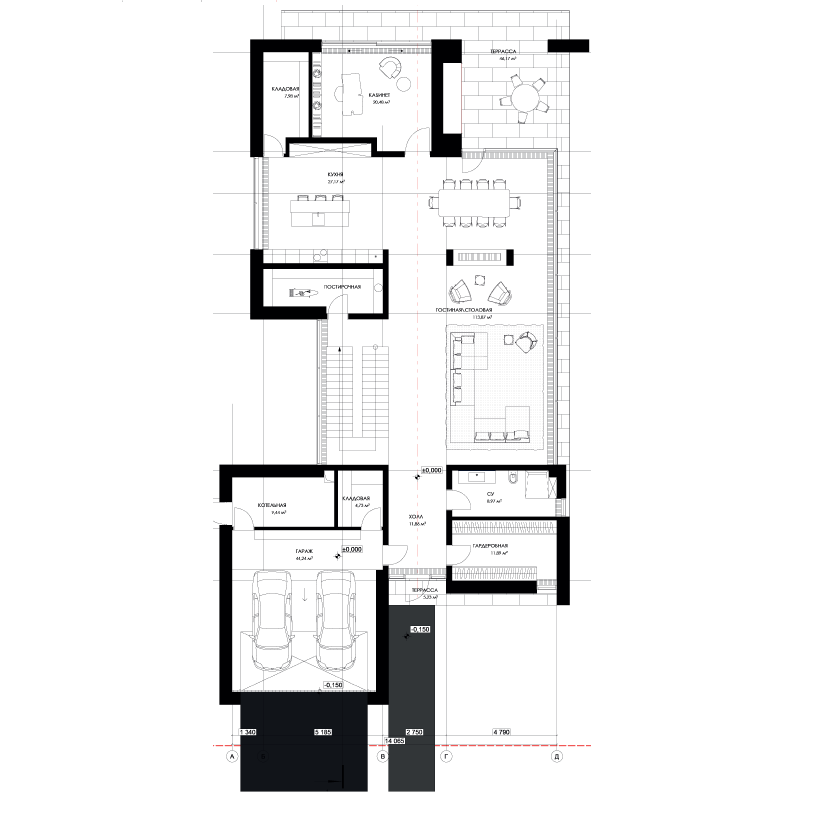
ФЕНИКС

Двухэтажный загородный дом площадью 400,29 кв.м. включает все для комфортного проживания и времяпрепровождения с семьей или друзьями. Кроме 3 спален и большой гостиной есть кладовые, гардеробные, постирочная, гараж на два машиноместа. Также на вилле есть еще одно место притяжения — терраса на первом этаже и зона барбекю.


ПЛАНИРОВКИ ДОМА «ФЕНИКС»

311 кв.м

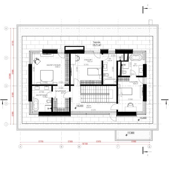
ОРИОН

Двухэтажная вилла в современном стиле. В доме предусмотрено все для комфортной загородной жизни: технические помещения, гардеробные, кухня, гостиная, совмещенная со столовой, кабинет, 3 спальни, 3 санузла, гараж на 1 автомобиль, терраса. А на большой зоне барбекю можно собираться всей семьей и с друзьями, чтобы провести время на свежем воздухе.


ПЛАНИРОВКИ ДОМА «ОРИОН»

500 кв.м

ГАММА

Двухэтажная и двухуровневая вилла в современном стиле подчеркнет ваш вкус и сделает проживание вне мегаполиса максимально комфортным. На площади в 500 кв.м. разместилось 4 спальни, гардеробные, гостиная, кухня-столовая, постирочная, кладовая, комнаты для персонала, гараж на два машиноместа и зона барбекю.


ПЛАНИРОВКИ ДОМА «ГАММА»

новости со стройплощадки

21 января 2025 года

Монтаж керамогранита Italon X2 на балконе дома по проекту Орион

Сейчас выполняем монтаж керамогранита 60*60 см на опоры. Это обеспечивает зазор между основанием и плиткой, в котором можно разместить кабели системы водоотведения, освещения и др. При этом пластины керамогранита легко снимаются, обеспечивая быстрый доступ к коммуникациям.

29 декабря 2025 года

Работы по устройству плоской кровли на нашем объекте Гамма

Несмотря на снег и приближающиеся праздники, работа в Миллениум Парке не останавливается.👌🏼

Мы выполняем монтаж армирующей ленты по периметру при устройстве плоской кровли. Это обязательный элемент, который укрепляет края кровельного «пирога», предотвращает механические повреждения и создает надежный контур для последующих работ.

Объект строится по нашему собственному проекту Гамма.

23 декабря 2025 года

Кровельные и инженерные работы на объекте Феникс

Этот дом мы строим по своему проекту. Сейчас занимаемся:
  • Устройством гидроизоляции плоской кровли c помощью EPDM-мембраны.
  • Оформлением примыканий к фасаду. Это самые критичные точки.
  • Монтажом парапетных воронок и подключением к ливневой магистрали. Даже в самый сильный ливень вода будет мгновенно и организованно уходить с кровли, не создавая луж и ледяных наростов зимой.
Почему это важно для будущего владельца?
  • Вечный вопрос решен: Никаких протечек, сырости или повреждения внутренней отделки.
  • Защита инвестиций: Качественная кровля сохранит в идеальном состоянии всю конструкцию дома.
  • Эстетика и функционал: Аккуратная, сухая кровля – основа для будущей террасы или зоны отдыха.

19 ноября 2025 года

Дом теперь на магистральном газе

На этой неделе мы завершили полное переключение всех инженерных систем на магистральный газ.

Что сделали:

  • Выполнили переподключение котельного оборудования.
  • Провели пусконаладку автоматики для безупречной работы системы отопления.
  • Демонтировали и вывезли временный газгольдер.
Результат для владельцев:

  • Экономия: Значительное снижение затрат на отопление.
  • Комфорт: Отпала необходимость в мониторинге и заправке газгольдера.
  • Надежность: Стабильная работа системы.
Наши заказчики могут полностью сосредоточиться на обустройстве своего быта, не думая о технических вопросах.

10 ноября 2025 года

Закончен монтаж системы снеготаяния на террасе дома по проекту "Гамма"

Система снеготаяния автоматически растапливает снег и предотвращает образование льда на поверхности. Система гарантирует чистое, сухое и безопасное покрытие без скольжения и уборки.

Опрессовка подтвердила герметичность оборудования, скоро будем бетонировать.

Параллельно идут ключевые этапы устройства плоской кровли:

  • Утепление экструзионным пенополистиролом ТЕХНОНИКОЛЬ
  • Армирование стяжки. Мы создаем ровное, надежное основание для раскатки гидроизоляции.

27 октября 2025 года

Прогресс на объекте «Орион» за последнюю неделю

Сейчас мы на одном из самых важных этапов – устройстве гидроизоляции плоской кровли. От этой работы зависит долговечность и комфорт будущего дома.
Что делаем прямо сейчас:

  • Укладка мембраны на кровле 1-го этажа и балконов.
  • Монтаж «Эластоизола» для защиты мембраны на кровле 2-го этажа.
  • Проклейка всех стыков и примыканий, усиление углов.
Мы используем технологичные и надежные материалы, чтобы с кровлей не было проблем:

– Мембрана Carlisle EPDM Sure-Seal – эластичная, устойчивая к ультрафиолету, перепадам температур и любым осадкам. Рассчитана на десятилетия.

– Очиститель Weathered Membrane Cleaner – этим составом мы очищаем EPDM перед склейкой, чтобы удалить любую грязь и обеспечить безупречное сцепление.

– Клей SURE-SEAL 90-8-30A – высокопрочный состав для соединения полотен мембраны. На 100% исключает протечки в местах стыков.
23 октября 2025 года

На проекте "Гамма" все готово к бетонированию

На объекте – активная фаза. Мы готовы к заливке монолитной железобетонной плиты террасы.

Что сделано на этой неделе:

  • Завершили армирование плиты. Использовали арматура разного сечения, что гарантирует абсолютную прочность и долговечность будущей конструкции.
  • Установили опалубку. Она обеспечит четкие и ровные геометрические формы.
  • Параллельно идет утепление кровли первого этажа и балконов. Мы используем материалы премиум-класса, чтобы обеспечить высокую энергоэффективность дома и комфорт в любое время года.
Следующий шаг – бетонирование. Работаем строго по графику и делимся реальным ходом строительства объекта.

20 октября 2025 года

Работы по утеплению кровли 1-го этажа и балконов на проекте "Омега"

Омега – это один из наших собственных проектов, который мы реализуем от разработки концепции до сдачи готового дома «под отделку».

На этой неделе мы выполняем ответственный этап, от которого зависят тепло и комфорт в будущем доме:

  • Утепление кровли 1-го этажа и балконов высокоэффективным пенополистиролом ТЕХНОНИКОЛЬ. Эксперт XPS CARBON. Его применение гарантирует минимальные теплопотери и долговечность конструкции.
  • Армирование стяжки, которое обеспечит прочное и ровное основание.

Мы используем проверенные материалы и строго следуем проекту.
16 октября 2025 года

Инженерные работы в Миллениум Парке

Сейчас на объекте один из самых ответственных этапов – прокладка инженерных систем.

Что именно мы делаем?
Обустраиваем кессоны – специальные подземные камеры, которые станут узлами подключения дома к водоснабжению и другим сетям. Это технологичное «сердце» коммуникаций.

На этой неделе мы выполнили:
  • Монтаж и герметизация кессонов. Мы не просто установили конструкции, а тщательно забетонировали дно и обработали все швы профессиональным материалом «Пенекрит» для 100% защиты от влаги.
  • Прокладка труб водоснабжения. Установлены прочные ПНД-трубы, а их соединения выполнены на совесть – с помощью электросварных муфт для идеальной герметичности.
  • Установка защитных гильз (футляров) для труб в местах их ввода.
Следите за продолжением!
15 октября 2025 года

Работы по устройству монолитной плиты террасы на проекте "Гамма"

Мы уже выполнили ответственный этап – утепление плиты экструзионным пенополистиролом ПЕНОПЛЭКС®

  • Материал гарантирует тепло. Его низкая теплопроводность не зависит от условий эксплуатации, обеспечивает стабильно высокие теплозащитные характеристики конструкции на протяжении всего срока эксплуатации.
  • Защищает от влаги. Пенополистирол имеет закрытую мелкоячеистую структуру, благодаря чему не впитывает влагу и сохраняет свои свойства десятилетиями.
  • Экономит ресурсы. Снижаются будущие затраты на отопление.
Сейчас мы заканчиваем армирование – создаем прочный «скелет» будущей плиты. Это залог ее долговечности и надежности. Дальше – бетонирование!
9 октября 2025 года

Дом по проекту Гамма растет!

Еще полгода назад здесь только заливали фундамент дома, а сейчас мы закладываем прочную основу для террасы.

  • Устройство песчаной подушки под плиту террасы.
  • Приемка уплотнения инженером качества.

Следите за ходом строительства!
6 октября 2025 года

Защита крыши на проекте "Орион" в Миллениум Парке

Проходит важный этап – устройство гидроизоляции плоской кровли.

Мы используем только проверенные, надежные материалы с расчетом на долгий срок службы:

  • Мембрана Carlisle EPDM Sure-Seal – эластичный и долговечный материал, устойчивый к ультрафиолету, перепадам температур и любым осадкам.
  • Очиститель Weathered Membrane Cleaner. Он нужен для подготовки поверхности EPDM перед склейкой – удаляет грязь и обеспечивает безупречное сцепление.
  • Клей SURE-SEAL 90-8-30A. Высокопрочный состав для соединения полотен мембраны. На 100% исключает протечки в местах стыков.

Параллельно монтируем и тщательно проклеиваем лотки, устанавливаем водосточные воронки. Это ключевой элемент, который обеспечит быстрый и эффективный отвод воды с крыши.
27 сентября 2025 года

Монтаж системы ливневой канализации по фасаду дома

Это продуманная «артериальная система» для всего дома. Мы организуем отдельный отвод воды с двух уровней:

  • С плоской кровли – вода от 8 парапетных воронок отводится по надежным трубам диаметром 110 мм. Каждая труба утеплена, чтобы исключить замерзание в зимний период.
  • Со второго этажа – еще 4 точки сбора воды направляются в общую систему по трубам 75 мм.
  • Раздельные магистрали предотвращают перегрузку системы при сильном ливне. Вода уходит быстро и организованно.
  • Утепление труб защищает от ледяных пробок и разрывов зимой. Система работает стабильно в любое время года.
  • Правильный водоотвод – это гарантия сохранности фундамента, отмостки и отделки стен на десятилетия.
18 августа 2025 года

Рабочие будни на объекте Марсель в Миллениум Парке

Этот дом мы построили на продажу – он полностью готов к внутренней отделке. А мы тем временем активно ведем устройство инженерных коммуникаций.

Канализация:

– Раскопка траншеи длиной 15 п.м.
– Укладка трассы, ввод трубы в колодец с последующей герметизацией.
– Обратная засыпка траншеи.

Водоснабжение:

– Приняли материалы из Архитектурно-строительный центр «Юнимарт»: труба ПНД 63 мм – 50 п.м. (для устройства футляра).
– Произведена раскопка траншеи и укладка гильзы (ПНД 63 мм, 20 п.м.).
– Соединение выполнено методом электромуфтовой сварки, обеспечивающей абсолютную герметичность и долговечность.
– Начата разводка: подсоединена и заведена в дом труба ПНД 32 мм.


Завершили узел ввода водопровода в дом.

28 августа 2025 года

Фотоотчет со строительной площадки объекта «Гамма»

Фундамент заложили еще в конце 2024 года, а сегодня показываем объем работ за прошедшие две недели:

  • Закончили утепление торцевых поверхностей фундаментной плиты экструзионным пенополистиролом ПЕНОПЛЭКС®. У него нулевое водопоглощение, низкая теплопроводность и абсолютная биостойкость, а подтвержденный срок эксплуатации материала – более 50 лет.
  • Выполнили гидроизоляцию утепленных поверхностей.
  • Установили современные оконные конструкции.
  • Начали подготовку основания под террасу – сейчас готовим песчаное основание под монолитную плиту.

Все работы выполняем в соответствии с техническими регламентами и проектной документацией.

11 июня 2025 года

Вязка арматурных конструкций вертикального каркаса 2-го этажа по проекту«Гамма»

Так сейчас выглядит «Гамма» – наш новый дом в Миллениум Парке

Это проект современной виллы площадью 526 кв.м., которую мы строим на продажу.

В июне здесь закончилось армирование и бетонирование монолитного перекрытия 1-го этажа на отметке 4.15 м. Мы использовали 102,5 м³ бетона В30 с высокой подвижностью.

Сейчас идет вязка арматурного каркаса вертикальных конструкций 2-го этажа.
25 ноября 2024 года

Вязка арматурного каркаса дома по проекту Феникс

Сейчас здесь готова фундаментная плита, завершается вязка арматурного каркаса будущих монолитных стен. Мы используем арматуру класса А500 с высокой коррозионной стойкостью и повышенной прочностью.

Параллельно выполняем монтаж разборной щитовой опалубки. Чтобы упростить последующий демонтаж, мы смазываем ее специальным раствором.
20 декабря 2024 года

Устройство гидроизоляции в доме по проекту Феникс

Меньше, чем за месяц мы успели:

  • закончить гидроизоляцию фундаментной плиты;
  • выполнить монтаж временного отопления и котельного оборудования в бытовом городке;
  • начать вязку арматурного каркаса будущего фундамента.
Для устройства гидроизоляции использовали материалы Технониколь:

  1. Битумный праймер, чтобы заполнить поры и связать пыль, обеспечить наилучшую адгезию материала к поверхности.
  2. Рулонный битумно-полимерный материал Техноэласт П в 2 слоя - для надежной защиты поверхности от влаги.
  3. Профилированная мембрана Planter, чтобы защитить Техноэласт от повреждений и равномерно распределить нагрузку.
25 ноября 2024 года

устройство подбетонки нового дома по проекту Феникс

Сейчас здесь идут подготовительные работы перед бетонированием монолитной фундаментной плиты. Мы закончили устройство дренажа и песчаного основания, проложили футляры под электричество, утеплили будущий фундамент пенополистиролом ТЕХНОНИКОЛЬ.

На днях залили подбетонку, использовав 54,5 кубометра раствора и автобетононасос с длиной стрелы 36 метров. Сейчас принимаем гидроизоляцию от гипермаркета строительных материалов Юнимарт и ухаживаем за бетоном – прогреваем, накрываем, чтобы набор прочности проходил равномерно и не образовывались трещины.
14 ноября 2024 года

Земляные и инженерные работы по проекту Омега

Сейчас здесь идут земляные и инженерные работы:

  • Мы закончили разработку котлована под монолитную фундаментную плиту и выполнили ручную доработку. Грунт подвержен осадке, усадке, просадке, набуханию и другим процессам, которые могут вызвать деформацию фундамента, поэтому мы тщательно уплотняем его вибрационным катком.
  • Выкопали траншею под дренаж, установили дренажные колодцы, уложили трубы, засыпали щебнем и песком.
  • Проложили футляры под электрический кабель.
Это наш типовой проект в стиле современного минимализма – комфортный функциональный, стильный. Работы только начались, но мы планируем сдать этот дом «под отделку» уже в следующем году.
05 ноября 2024 года

Начало работ по проекту Феникс

Сегодня мы побывали на строительной площадке Феникса. Работы здесь начались в конце октября:

  • разметка территории;
  • разработка котлована под фундаментную плиту с вывозом грунта и ручной доработкой;
  • копка траншей под канализацию;
  • устройство песчаного основания;
  • установка гильз для ввода коммуникаций.
Работы продолжаются.

ЗАКАЖИТЕ ЗВОНОК,
ЧТОБЫ УЗНАТЬ больше о домах В Миллениум Парк

CRM-форма появится здесь
Cookie-файлы
Настройка cookie-файлов
Детальная информация о целях обработки данных и поставщиках, которые мы используем на наших сайтах
Аналитические Cookie-файлы Отключить все
Технические Cookie-файлы
Другие Cookie-файлы
Мы используем файлы Cookie для улучшения работы, персонализации и повышения удобства пользования нашим сайтом. Продолжая посещать сайт, вы соглашаетесь на использование нами файлов Cookie. Подробнее о нашей политике в отношении Cookie.
Принять все Отказаться от всех Настроить
Cookies