Омега – современный дом с плоской кровлей, продуманной планировкой и большой площадью остекления.

Это разработанный нами проект, в котором мы уделили особое внимание функциональности. Несмотря на небольшую площадь – 407 кв.м, планировка предусматривает все необходимое для комфортной загородной жизни: гостиную с кухней, кабинет, SPA с джакузи, сауну, спортзал, гараж на два автомобиля, террасу. На втором этаже личные апартаменты: мастер-спальня, две детские комнаты – все со своими гардеробными и санузлами. В комнатах большие окна в пол, через которые попадает много дневного света, поэтому здесь всегда уютно и светло.

Дом органично вписывается в ландшафт за счет облицовочных материалов с натуральной текстурой. Это крупноформатный керамогранит и алюмокомпозитные панели под бетон, мрамор и кортен.
407 м2
площадь дома

характеристики дома

об участке
  • Тип участка:  видовой
  • Площадь участка: 15,45 соток
  • Статус участка: ИЖС
  • Категория земель: земли населенных пунктов
о доме
  • Площадь дома: 407 кв.м
  • Отделка: без отделки
  • Состояние дома: нужно достроить
  • Количество этажей: 2
  • Тип дома: для постоянного проживания
коммуникации
  • Канализация: центральная
  • Электричество: есть
  • Выделенная мощность электроэнергии: 15 кВт
  • Отопление: автономное газовое
планировка
  • Спален: 4
  • Санузлов: 5
  • Гардеробные: 2
  • Технические помещения: котельная
  • Дополнительные удобства: террасы, гараж

ГЕНЕРАЛЬНЫЙ ПЛАН

Дом находится на участке 15,45 соток, занимает всю его переднюю часть и делит территорию на две зоны: придомовую и дворовую. Парадная часть предусматривает входную группу с озелененной и благоустроенной территорией, парковку. Дворовая или приватная территория занимают треть участка. Вдали от посторонних глаз здесь можно разместить зону для барбекю, бассейн, летнюю кухню или другие постройки.

Площадь 1 этажа296 м2
Площадь террас 1 этажа 60 м2
Площадь 2 этажа111 м2
Площадь террас 2 этажа56 м2
Общая площадь дома 407 м2
Общая полезная площадь дома377 м2
Общая площадь участка1545 м2

планировки

Первый этаж оборудован общими зонами и всем, что нужно для комфорта. При входе — холл, гардеробная, кабинет и гостевой санузел. Пройдя дальше, вы попадаете в просторное и светлое помещение, в котором соединились гостиная, кухня и столовая. За счет панорамных окон и высоких потолков пространство кажется очень светлым и уютным. В другой части дома — зона релакса и оздоровления: сауна, спортзал. Есть гостевая спальня, выход на зону отдыха под открытым небом. На втором этаже разместились личные апартаменты. В левом крыле — мастер-спальня с гардеробной и ванной, в правом — две небольшие спальни с отдельными санузлами.

План 1 этажа

Общая площадь этажа296 м2
Общая площадь этажа без террас276,53 м2
1. Холл10,49 м2
2. Кабинет14,65 м2
3. Гостевой санузел3,52 м2
4. Гардероб7,00 м2
5. Гараж51,84 м2
6. Кладовая4,45 м2
7. Холл10,80 м2
8. Кухня-столовая45,10 м2
9. Гостиная37,81 м2
10. Холл14,49 м2
11. Спортзал29,02 м2
12. Спальня24,43 м2
13. Ванная7,82 м2
14. Сауна7,86 м2
15. Котельная7,25 м2

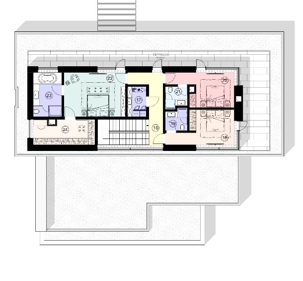
План 2 этажа

Общая площадь этажа111 м2
Общая площадь этажа без террас99,95 м2
16. Холл11,08 м2
17. Постирочная4,68 м2
18. Спальня15,39 м2
19. Ванная3,79 м2
20. Спальня15,00 м2
21. Ванная3,79 м2
22. Мастер-спальня
  22,78 м2 
23. Мастер ванная
10,51 м2 
24. Мастер гардеробная12,93 м2

узнайте об особенностях

дома «Омега»

Оставьте заявку и наш эксперт свяжется с Вами

КОНСТРУКТИВНЫЕ ПРЕИМУЩЕСТВА 


МОНОЛИТНЫЕ ЖЕЛЕЗОБЕТОННЫЕ СТЕНЫ

Они прочные и обладают минимальной усадкой – можно быстрее начать внутреннюю отделку. А еще такие стены очень ровные и не имеют швов, что существенно снижает расходы на отделочные работы и материалы.

ПЕРЕКРЫТИЕ ИЗ МОНОЛИТНЫХ ЖЕЛЕЗОБЕТОННЫХ ПЛИТ

Конструкция получается прочной и ровной, хорошо изолирует звуки и не требует серьезной доработки перед финишной отделкой. Железобетон не подвержен коррозии и гниению, сохраняет свои характеристики на протяжении десятилетий, что гарантирует долгий срок эксплуатации дома.

ВНУТРЕННИЕ НЕСУЩИЕ СТЕНЫ И ПЕРЕГОРОДКИ ИЗ ПОЛНОТЕЛОГО КИРПИЧА
Они обеспечивают хорошую теплоизоляцию и шумоподавление – вы сможете спокойно поработать в кабинете, даже если дети устроили «музыкальный концерт» в соседней комнате. А еще такие стены позволяют закреплять тяжелые предметы – водонагреватели большого объема и др.
ПЛОСКАЯ КРОВЛЯ С ИСПОЛЬЗОВАНИЕМ ТЕХНОЛОГИЧНОЙ EPDM-МЕМБРАНЫ
Плоская крыша отличается лаконичным и стильным дизайном. Она устойчива к сильным ветрам за счет минимальной парусности конструкции. Для надежной гидроизоляции здесь будет использована EPDM мембрана. Она устойчива к любым погодным факторам и надежно защищает крышу от протечек, а благодаря отсутствию пор – не разрушается под воздействием влаги.

РАСПОЛОЖЕНИЕ ДОМА В ПОСЕЛКЕ

Дом находится в новом 8-м квартале КП Миллениум Парк – в приватной части новой зоны застройки. Квартал новой очереди расположен в пяти минутах прогулки до парковых ансамблей и рукотворных каналов поселка. Их уникальный ландшафт образует ботаническая коллекция из лучших европейских и российских питомников. В ней собрано порядка 6000 лиственных деревьев, 200 бонсаев, сотни цветов и десятки растений, образующих живые изгороди.

MILLENIUM PARK – идеальное место для жизни

Миллениум Парк объединяет комфортную среду поселка премиум-класса и природную ценность места. В шаговой доступности детский сад и клуб, спортивные и игровые площадки, ресторан, фитнес-клуб, благоустроенные парки, озеро с набережной. Территория надежно охраняется, а чистоту и порядок поддерживает собственная управляющая компания. Здесь беззаботно играют дети, а родители спокойны, потому что знают – в Миллениум Парке абсолютно безопасно.

Площадь поселка 331 га, 62 из них занимают зеленые парки, скверы и прогулочные аллеи. По ним можно часами гулять и наслаждаться ландшафтом, вдохновленным красотой лучших парков мира: Hyde Park, Юй Юань, Версаля, виллы д’Эсте. В Миллениум парк проложено 10 рукотворных каналов, объединяющих 9 кварталов поселка, разбито 5 парков – парк «Остров», парк «Трех озер», парк «Усадьба», парк «Лабиринт», парк «Круглое озеро». И это, не считая бульварных ландшафтов, 9 прогулочных зон, а также беседок, скульптур других построек, украшающих набережные. Каждому парковому ансамблю присуща своя тематика.

2024

ПОСЁЛОК ГОДА

о поселке
  • Класс:  элитный
  • Год сдачи: 2018
  • Дороги: из брусчатки
  • Газ: магистральный
  • Канализация: центральная
  • Водоснабжение: центральное
  • Электричество: да
  • Огороженный периметр: да
  • Круглосуточная охрана: да
инфраструктура
  • Детский сад, школа
  • Детские и спортивные площадки
  • Пропускная система
  • Парковки
  • Рестораны
  • Фитнес-центр
  • Магазины
  • Места для отдыха и парковые зоны
  • Бассейн

здесь можно заниматься спортом, созерцать красоту природы и отпускать детей играть

Для жителей Millenium Park обустроены зоны для занятия спортом – футбольное поле, волейбольная площадка, благоустроенная набережная, открытые спортивные площадки. Каждый сможет найти для себя занятие и реализовать свои увлечения – утренняя пробежка или поездка на велосипеде, воскресная игра в футбол и вечерний променад среди зеленых садов. Семьи с детьми смогут провести время на красочных детских площадках – здесь дети будут с удовольствием играть, общаться, узнавать новое. Для их досуга: роллердром, гоночная траса, 7 тематических игровых зон. Детский сад для малышей и клуб «Робин Гуд» с командой первоклассных специалистов, способных раскрыть потенциал вашего ребенка. Все это в шаговой доступности на территории поселка.

ДОМ В САМОМ ЭКОЛОГИЧЕСКИ ЧИСТОМ РАЙОНЕ ПОДМОСКОВЬЯ

Коттеджный поселок «Миллениум Парк» находится в Истринском районе в 25 км от МКАД по Новорижскому шоссе. Леса здесь занимают 54% всей территории, более 78% – насаждения естественного происхождения. Природа района необычайно разнообразна: здесь есть и холмистые участки, и равнины, и реки. Есть Истринское водохранилище, на котором любят отдыхать летом местные жители и гости из ближайших районов. Есть несколько минеральных источников. В этом районе нет крупных промышленных предприятий, а загрязнение атмосферы не превышает 1% от общих выбросов МО. Благодаря отличной экологической обстановке, живописным видам и хорошей инфраструктуре поселок «Миллениум Парк» — идеальное место для жизни и отдыха на природе.
чистый воздух

Воздух в этом районе считается наиболее чистым благодаря отсутствию крупных промышленных предприятий и западной розе ветров. Уровень загрязнения воздушной среды основными вредными веществами находится ниже норм ПДК.

высокая лесистость

54% территории Истринского района занимают хвойные леса. Лес большей частью состоит из мелколиственных пород, ели и сосны. Лесные массивы Истринского района отнесены к 2-ой группе и выполняют санитарно-гигиенические и оздоровительные функции.


Обилие водоемов

Самым крупный водоем на этой территории — Истринское водохранилище площадью 33 кв.км. Главной рекой является Истра с притоком Малая Истра. Помимо этого, протекает ещё несколько относительно значительных рек: Болденка, Разварня, Тростня, Молодильня (приток Малой Истры), Дарья. Речная сеть района относится к благополучным, а средние концентрации загрязняющих веществ в них не превышают 0,5-4 ПДК.

нет вредных производств
На территории района работает небольшое количество предприятий и нет вредных производств. Поэтому промышленность не влияет негативно на природу, как, например, на востоке и юго-востоке Московской области, где сосредоточена основная часть вредных производств.

доступ к развитой инфраструктуре новой риги  

Вам не нужно ехать Москву за развлечениями, шопингом, медицинскими или банковскими услугами – на Новой Риге есть все. Все самое лучшее! В непосредственной близости – крупные торговые центры: Novaya Riga Outlet Village, Архангельское Аутлет, Estate Mall, Рига Молл и другие. Есть медицинские центры и элитные образовательные учреждения, салоны красоты, автосервисы и рестораны популярных столичных сетей – Кофемания, Чайхона №1 и другие. Совсем недалеко фермерские рынки и супермаркеты со свежими продуктами «Азбука вкуса», «Перекресток», «Алые паруса». Для любителей активного отдыха здесь есть спортивные клубы с бассейнами, теннисными кортами и всевозможными секциями – самый большой в Европе СК World Class находится в Павлово Подворье. 

ход строительства

13 апреля 2026 года

устройство ливневой канализации

Сейчас мы занимаемся устройством ливневой канализации. Она нужна для отвода дождевой и талой воды с участка и кровли. Система собирает сток и направляет его в дренажную сеть, предотвращает переувлажнение грунта, размывание отмостки и нагрузку на фундамент. Это базовый инженерный контур, который защищает участок и конструктив дома в период эксплуатации.

26 марта 2025 года

Гидроизоляция кровли и монтаж ливневой канализации

Мы собрали магистраль ливневой канализации первого этажа, восстановили стяжку после монтажа водосточной системы. Также мы сделали гидроизоляцию кровли с проклейкой всех лотков, подключили кровельные и парапетные воронки. Эти работы обеспечивают правильный отвод дождевой воды с кровли, защищают фасад от влаги и предотвращают образование подтеков.
26 февраля 2026 года

устройство кровли и ливневой канализации

Это важная часть инженерной защиты дома, от которой напрямую зависит долговечность конструкций.

Мы продолжили устройство гидроизоляции кровли и балконов: выполняем примыкания к шахтам, фасаду и стеклянному ограждению, монтируем узлы примыканий, проклеиваем лотки. Отдельное внимание — герметичности и точности сопряжений, поскольку именно в этих зонах чаще всего возникают риски протечек.

Параллельно ведем подготовку к устройству ливневых магистралей. Для закладных вскрыли мембрану кровли и аккуратно вырезали утеплитель в стяжке — работы выполняются с соблюдением технологии, чтобы сохранить целостность кровельного пирога.

Продолжаем монтаж ливневых коммуникаций по фасаду второго этажа: выполнены электросварные соединения фасадных магистралей, что обеспечивает надежность и герметичность системы. Также подготовили основания для установки воронок в лотках и выполнили соединение четырех парапетных воронок.

28 января 2025 года

утепляем стены, выполняем гидроизоляцию террасы

Мы уже закончили кладку всех перегородок на 2-х этажах, сейчас утепляем стены, выполняем гидроизоляцию террасы и торцов фундаментной плиты.

Для этого используем материалы Технониколь. Сначала грунтуем поверхность праймером, а потом наплавляем гидроизоляцию Техноэласт ЭПП. Она обладает абсолютной водонепроницаемостью, устойчива к грибку и перепадам температуры. В общей сложности мы использовали более 110м2 гидроизоляции.

Стены утепляем плитами из каменной ваты Rockwool, закрепляя их на тарельчатые дюбели-гвозди. Они надежно фиксируют теплоизоляцию плотно к стене.
14 ноября 2024 года

Земляные и инженерные работы по проекту Омега

Сейчас здесь идут земляные и инженерные работы:

– Мы закончили разработку котлована под монолитную фундаментную плиту и выполнили ручную доработку. Грунт подвержен осадке, усадке, просадке, набуханию и другим процессам, которые могут вызвать деформацию фундамента, поэтому мы тщательно уплотняем его вибрационным катком.

– Выкопали траншею под дренаж, установили дренажные колодцы, уложили трубы, засыпали щебнем и песком.

  • – Проложили футляры под электрический кабель.

  • Это наш типовой проект в стиле современного минимализма – комфортный функциональный, стильный. 

    задать вопросы по дому «Омега»

    Оставьте заявку – наш эксперт перезвонит и ответит на все вопросы!

    CRM-форма появится здесь
    Cookie-файлы
    Настройка cookie-файлов
    Детальная информация о целях обработки данных и поставщиках, которые мы используем на наших сайтах
    Аналитические Cookie-файлы Отключить все
    Технические Cookie-файлы
    Другие Cookie-файлы
    Мы используем файлы Cookie для улучшения работы, персонализации и повышения удобства пользования нашим сайтом. Продолжая посещать сайт, вы соглашаетесь на использование нами файлов Cookie. Подробнее о нашей политике в отношении Cookie.
    Принять все Отказаться от всех Настроить
    Cookies