Коттедж «Орион»

Современный, минималистичный, функциональный – это все про наш дом Орион. Простые линии и премиальные материалы подчеркивают стиль, а функциональная планировка делает каждое помещение удобным и практичным. Мы спроектировали его так, чтобы вы могли наслаждаться жизнью, работой и отдыхом в одном месте.

Внутри высокие потолки, просторные открытые пространства и панорамное остекление. На первом этаже вас ждет кухня-столовая с выходом на террасу, уютная гостиная, кабинет, а также гараж и кладовые для хранения. Второй этаж – это личное пространство с мастер-спальней и двумя детскими. У каждой собственный санузел.
361 м2
площадь дома

характеристики дома

об участке
  • Тип участка:  видовой
  • Площадь участка: 15,38 соток
  • Статус участка: ИЖС
  • Категория земель: земли населенных пунктов
о доме
  • Площадь дома: 361 кв.м
  • Отделка: без отделки
  • Состояние дома: нужно достроить
  • Количество этажей: 2
  • Тип дома: для постоянного проживания
коммуникации
  • Канализация: центральная
  • Электричество: есть
  • Выделенная мощность электроэнергии: 15 кВт
  • Отопление: автономное газовое
планировка
  • Спален: 3
  • Санузлов: 4
  • Гардеробные: 2
  • Технические помещения: котельная, постирочная
  • Дополнительные удобства: терраса

ГЕНЕРАЛЬНЫЙ ПЛАН

Дом занимает всю переднюю часть участка и делит территорию на 2 зоны: придомовую и дворовую. Парадная часть предусматривает входную группу с озелененной и благоустроенной территорией, парковку. Дворовая или приватная территория занимают треть участка. Вдали от посторонних глаз здесь можно разместить зону для барбекю, бассейн, летнюю кухню или другие постройки.

Площадь 1 этажа240 м2
Площадь террас 1 этажа 65 м2
Площадь 2 этажа121 м2
Площадь террас 2 этажа52 м2
Общая площадь дома 361 м2
Общая полезная площадь дома340 м2
Общая площадь участка1538 м2

планировки

Первый этаж объединяет все общие зоны. Возле входа разместился кабинет, панорамное окно в котором выходит на торец дома и обеспечивает рабочему помещению тишину и спокойствие. Проходя через холл, вы попадаете просторную столовую, гостиную и кухню. В стороне разместились технические и хозяйственные помещения: котельная, кладовая. Также присутствует постирочная. Второй этаж полностью занимают личные комнаты. В одном «крыле» — две спальни, которые можно выделить под детские или гостевые. В каждой — личный санузел. Остальное пространство занимает мастер-спальня с отдельной ванной и гардеробной комнатой. На открытой террасе можно организовать зону релакса и наслаждаться теплом в солнечные дни.


План 1 этажа

Общая площадь этажа240 м2
Общая площадь этажа без террас227,86 м2
1. Холл24,60 м2
2. Гардероб10,69 м2
3. Кабинет16,84 м2
4. Гостевой санузел6,61 м2
5. Постирочная4,05 м2
6. Столовая29,97 м2
7. Гостиная35,66 м2
8. Кухня22,83 м2
9. Гараж51,84 м2
10. Кладовая5,42 м2
11. Кладовая6,53 м2
12. Котельная12,82 м2

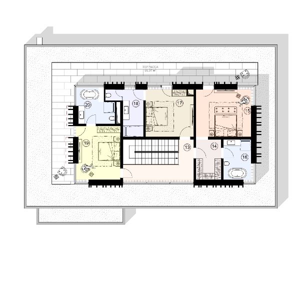
План 2 этажа

Общая площадь этажа121 м2
Общая площадь этажа без террас112,21 м2
13. Холл13,60 м2
14. Гардеробная8,39 м2
15. Мастер-спальня
 22,52 м2 
16. Ванная10,00 м2
17. Спальня18,76 м2
18. Ванная9,50 м2
19. Спальня19,71 м2
20. Ванная
9,73 м2 

узнайте о преимуществах

дома «Орион»

Оставьте заявку и наш эксперт свяжется с Вами

КОНСТРУКТИВНЫЕ ПРЕИМУЩЕСТВА 


МОНОЛИТНЫЕ ЖЕЛЕЗОБЕТОННЫЕ СТЕНЫ

Они прочные и обладают минимальной усадкой – можно быстрее начать внутреннюю отделку. А еще такие стены очень ровные и не имеют швов, что существенно снижает расходы на отделочные работы и материалы.

ПЕРЕКРЫТИЕ ИЗ МОНОЛИТНЫХ ЖЕЛЕЗОБЕТОННЫХ ПЛИТ

Конструкция получается прочной и ровной, хорошо изолирует звуки и не требует серьезной доработки перед финишной отделкой. Железобетон не подвержен коррозии и гниению, сохраняет свои характеристики на протяжении десятилетий, что гарантирует долгий срок эксплуатации дома.

ВНУТРЕННИЕ НЕСУЩИЕ СТЕНЫ И ПЕРЕГОРОДКИ ИЗ ПОЛНОТЕЛОГО КИРПИЧА
Они обеспечивают хорошую теплоизоляцию и шумоподавление – вы сможете спокойно поработать в кабинете, даже если дети устроили «музыкальный концерт» в соседней комнате. А еще такие стены позволяют закреплять тяжелые предметы – водонагреватели большого объема и др.
ПЛОСКАЯ КРОВЛЯ С ИСПОЛЬЗОВАНИЕМ ТЕХНОЛОГИЧНОЙ EPDM-МЕМБРАНЫ
Плоская крыша отличается лаконичным и стильным дизайном. Она устойчива к сильным ветрам за счет минимальной парусности конструкции. Для надежной гидроизоляции здесь будет использована EPDM мембрана. Она устойчива к любым погодным факторам и надежно защищает крышу от протечек, а благодаря отсутствию пор – не разрушается под воздействием влаги.

РАСПОЛОЖЕНИЕ ДОМА В ПОСЕЛКЕ

Дом находится в новом 8-м квартале КП Миллениум Парк – в приватной части новой зоны застройки. Квартал новой очереди расположен в пяти минутах прогулки до парковых ансамблей и рукотворных каналов поселка. Их уникальный ландшафт образует ботаническая коллекция из лучших европейских и российских питомников. В ней собрано порядка 6000 лиственных деревьев, 200 бонсаев, сотни цветов и десятки растений, образующих живые изгороди.

MILLENIUM PARK – идеальное место для жизни

Миллениум Парк объединяет комфортную среду поселка премиум-класса и природную ценность места. В шаговой доступности детский сад и клуб, спортивные и игровые площадки, ресторан, фитнес-клуб, благоустроенные парки, озеро с набережной. Территория надежно охраняется, а чистоту и порядок поддерживает собственная управляющая компания. Здесь беззаботно играют дети, а родители спокойны, потому что знают – в Миллениум Парке абсолютно безопасно.

Площадь поселка 331 га, 62 из них занимают зеленые парки, скверы и прогулочные аллеи. По ним можно часами гулять и наслаждаться ландшафтом, вдохновленным красотой лучших парков мира: Hyde Park, Юй Юань, Версаля, виллы д’Эсте. В Миллениум парк проложено 10 рукотворных каналов, объединяющих 9 кварталов поселка, разбито 5 парков – парк «Остров», парк «Трех озер», парк «Усадьба», парк «Лабиринт», парк «Круглое озеро». И это, не считая бульварных ландшафтов, 9 прогулочных зон, а также беседок, скульптур других построек, украшающих набережные. Каждому парковому ансамблю присуща своя тематика.

2024

ПОСЁЛОК ГОДА

о поселке
  • Класс:  элитный
  • Год сдачи: 2018
  • Дороги: из брусчатки
  • Газ: магистральный
  • Канализация: центральная
  • Водоснабжение: центральное
  • Электричество: да
  • Огороженный периметр: да
  • Круглосуточная охрана: да
инфраструктура
  • Детский сад, школа
  • Детские и спортивные площадки
  • Пропускная система
  • Парковки
  • Рестораны
  • Фитнес-центр
  • Магазины
  • Места для отдыха и парковые зоны
  • Бассейн

здесь можно заниматься спортом, созерцать красоту природы и отпускать детей играть

Для жителей Millenium Park обустроены зоны для занятия спортом – футбольное поле, волейбольная площадка, благоустроенная набережная, открытые спортивные площадки. Каждый сможет найти для себя занятие и реализовать свои увлечения – утренняя пробежка или поездка на велосипеде, воскресная игра в футбол и вечерний променад среди зеленых садов. Семьи с детьми смогут провести время на красочных детских площадках – здесь дети будут с удовольствием играть, общаться, узнавать новое. Для их досуга: роллердром, гоночная траса, 7 тематических игровых зон. Детский сад для малышей и клуб «Робин Гуд» с командой первоклассных специалистов, способных раскрыть потенциал вашего ребенка. Все это в шаговой доступности на территории поселка.

ДОМ В САМОМ ЭКОЛОГИЧЕСКИ ЧИСТОМ РАЙОНЕ ПОДМОСКОВЬЯ

Коттеджный поселок «Миллениум Парк» находится в Истринском районе в 25 км от МКАД по Новорижскому шоссе. Леса здесь занимают 54% всей территории, более 78% – насаждения естественного происхождения. Природа района необычайно разнообразна: здесь есть и холмистые участки, и равнины, и реки. Есть Истринское водохранилище, на котором любят отдыхать летом местные жители и гости из ближайших районов. Есть несколько минеральных источников. В этом районе нет крупных промышленных предприятий, а загрязнение атмосферы не превышает 1% от общих выбросов МО. Благодаря отличной экологической обстановке, живописным видам и хорошей инфраструктуре поселок «Миллениум Парк» — идеальное место для жизни и отдыха на природе.
чистый воздух

Воздух в этом районе считается наиболее чистым благодаря отсутствию крупных промышленных предприятий и западной розе ветров. Уровень загрязнения воздушной среды основными вредными веществами находится ниже норм ПДК.

высокая лесистость

54% территории Истринского района занимают хвойные леса. Лес большей частью состоит из мелколиственных пород, ели и сосны. Лесные массивы Истринского района отнесены к 2-ой группе и выполняют санитарно-гигиенические и оздоровительные функции.


Обилие водоемов

Самым крупный водоем на этой территории — Истринское водохранилище площадью 33 кв.км. Главной рекой является Истра с притоком Малая Истра. Помимо этого, протекает ещё несколько относительно значительных рек: Болденка, Разварня, Тростня, Молодильня (приток Малой Истры), Дарья. Речная сеть района относится к благополучным, а средние концентрации загрязняющих веществ в них не превышают 0,5-4 ПДК.

нет вредных производств
На территории района работает небольшое количество предприятий и нет вредных производств. Поэтому промышленность не влияет негативно на природу, как, например, на востоке и юго-востоке Московской области, где сосредоточена основная часть вредных производств.

доступ к развитой инфраструктуре новой риги  

Вам не нужно ехать Москву за развлечениями, шопингом, медицинскими или банковскими услугами – на Новой Риге есть все. Все самое лучшее! В непосредственной близости – крупные торговые центры: Novaya Riga Outlet Village, Архангельское Аутлет, Estate Mall, Рига Молл и другие. Есть медицинские центры и элитные образовательные учреждения, салоны красоты, автосервисы и рестораны популярных столичных сетей – Кофемания, Чайхона №1 и другие. Совсем недалеко фермерские рынки и супермаркеты со свежими продуктами «Азбука вкуса», «Перекресток», «Алые паруса». Для любителей активного отдыха здесь есть спортивные клубы с бассейнами, теннисными кортами и всевозможными секциями – самый большой в Европе СК World Class находится в Павлово Подворье. 

Генеральные партнеры по продажам

Дорожим сотрудничеством и ценим профессионализм

записаться на просмотр дома «Орион»

Оставьте заявку – наш эксперт перезвонит и ответит на все вопросы!

CRM-форма появится здесь
Cookie-файлы
Настройка cookie-файлов
Детальная информация о целях обработки данных и поставщиках, которые мы используем на наших сайтах
Аналитические Cookie-файлы Отключить все
Технические Cookie-файлы
Другие Cookie-файлы
Мы используем файлы Cookie для улучшения работы, персонализации и повышения удобства пользования нашим сайтом. Продолжая посещать сайт, вы соглашаетесь на использование нами файлов Cookie. Подробнее о нашей политике в отношении Cookie.
Принять все Отказаться от всех Настроить
Cookies