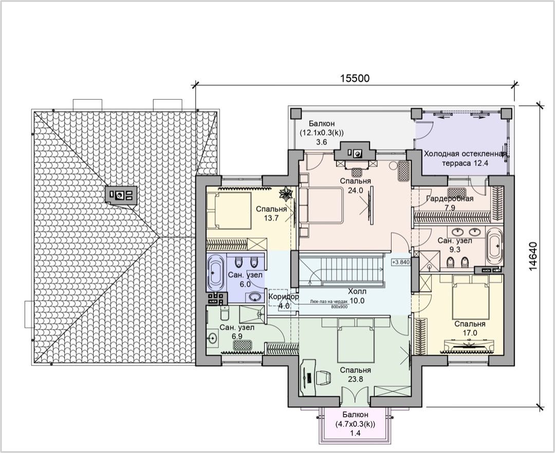
352,6 кв.м
ОБЩАЯ ПЛОЩАДЬ ДОМА
Двухэтажный дом в классическом стиле с большой террасой и гаражом. Архитектурный стиль объекта подчеркивает симметричная форма и обилие фасадного декора. В доме просторные помещения с высокими потолками до 3,5 м и панорамными окнами, наполняющими каждую комнату естественным светом. Здесь будет комфортно жить и отдыхать большой семье.