СОВРЕМЕННАЯ ВИЛЛА В

КП «МИЛЛЕНИУМ ПАРК»

Спроектирована ведущим архитектурным бюро – SL Project 

Общая площадь 966 кв.м

Современный двухэтажный коттедж построен компанией Unistroy в сотрудничестве с архитектурным бюро SL Project. Дом площадью 966 кв.м. рассчитан на большую семью и понравится тем, кто любит принимать гостей. Для этого кроме 4 личных спален здесь предусмотрено несколько гостевых комнат, большое патио, гараж на два автомобиля и еще два парковочных места. На первом этаже можно обустроить просторную гостиную и столовую.

Этот коттедж — олицетворение современного стиля. В его архитектуре преобладают строгие формы, прямые линии, симметрия, выступающие и нависающие конструктивные элементы. Фасад оформлен алюминиево-композитными и аквапанелями, крупноформатным керамогранитом, планкеном. Панорамное остекление и второй свет делают и без того просторные помещения визуально еще больше, светлее и «воздушнее». 


ПОЭТАЖНЫЕ ПЛАНЫ


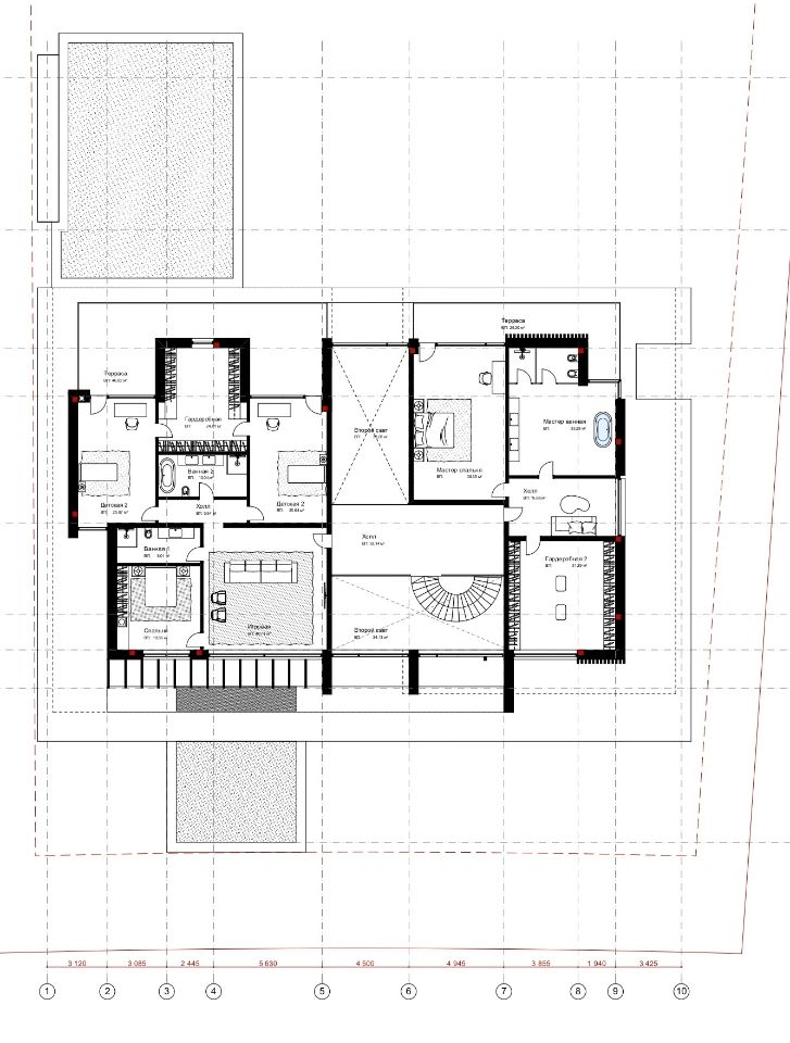
1-Й ЭТАЖ

На первом этаже разместились гостевые апартаменты с общей ванной и отдельной кухней, кабинет, технические и бытовые помещения, а также зоны общего доступа. Кладовые, постирочная, котельная и генераторная, отделенные коридором, «спрятались» в другой части дома. Основную часть этажа занимает большое светлое помещение гостиной-столовой и кухни.

Общая площадь — 673,77 кв.м. 

2-Й ЭТАЖ

Второй этаж поделен на две зоны. С одной стороны — мастер-спальня с небольшим холлом, отдельной гардеробной и ванной. Идеально в качестве родительских апартаментов. Со второй — детская зона. А именно: игровая, 3 спальни и 2 санузла. На просторной террасе можно обустроить лаундж-зону, на которой комфортно наслаждаться живописной природой поселка, отдыхать и набираться сил.

Площадь всех помещений — 335,36 кв.м. 

ПОСАДКА ДОМА НА УЧАСТКЕ

Дом занимает левую и центральную часть участка. На заднем дворе можно разбить сад, обустроить детскую или спортивную площадку, построить веранду и оформить так, как хочется именно Вам.



КОНСТРУКТИВНЫЕ ПРЕИМУЩЕСТВА 


МОНОЛИТНАЯ ФУНДАМЕНТНАЯ ПЛИТА

Она создает устойчивое и надежное основание даже на рыхлых и подвижных грунтах, во время пучения или движения грунтовых вод. При таком фундаменте вес дома равномерно распределяется по всей площади и также равномерно передается на грунт.

ЖЕЛЕЗОБЕТОННЫЕ СТЕНЫ

Они прочные и обладают минимальной усадкой – можно быстрее начать внутреннюю отделку. А еще такие стены очень ровные и не имеют швов, что существенно снижает расходы на отделочные работы и материалы.

ВНУТРЕННИЕ НЕСУЩИЕ СТЕНЫ И ПЕРЕГОРОДКИ ИЗ ПОЛНОТЕЛОГО КИРПИЧА
Они обеспечивают хорошую теплоизоляцию и шумоподавление – вы сможете спокойно поработать в кабинете или насладиться покоем в SPA, даже если дети устроили «музыкальный концерт» в соседней комнате. А еще такие стены позволяют закреплять тяжелые предметы – водонагреватели большого объема и др.
ПЛОСКАЯ КРОВЛЯ С ИСПОЛЬЗОВАНИЕМ ТЕХНОЛОГИЧНОЙ EPDM-МЕМБРАНЫ
Плоская крыша отличается лаконичным и стильным дизайном. Она устойчива к сильным ветрам за счет минимальной парусности конструкции. Для надежной гидроизоляции здесь будет использована EPDM мембрана. Она устойчива к любым погодным факторам и надежно защищает крышу от протечек, а благодаря отсутствию пор – не разрушается под воздействием влаги.
ПЕРЕКРЫТИЕ ИЗ МОНОЛИТНЫХ ЖЕЛЕЗОБЕТОННЫХ ПЛИТ
Конструкция получается прочной и ровной, хорошо изолирует звуки и не требует серьезной доработки перед финишной отделкой. Железобетон не подвержен коррозии и гниению, сохраняет свои характеристики на протяжении десятилетий, что гарантирует долгий срок эксплуатации дома.
СИСТЕМА ВЕНТФАСАДА
Самое технологичное решение для фасада, которое повышает рыночную стоимость дома. Такая система обеспечивает эффективную теплоизоляцию и естественную вентиляцию всего «пирога», устойчива к любым погодным условиям и аномалиям, проста в обслуживании. При необходимости вы можете заменить отдельные элементы вентфасада без демонтажа всей конструкции.

Коттеджный
поселок
«миллениум парк»

площадь

285 Га

удаленность от мкад

19 км

элитный поселок на новой риге

Поселок Миллениум Парк находится в 19 км от МКАД и открывает доступ к богатой инфраструктуре Новой Риги. Здесь проведены все коммуникации, за чистотой следит управляющая компания, а безопасность обеспечивает круглосуточная охрана и видеонаблюдение. На территории обустроены досуговые площадки для детей и взрослых. Его атмосфера напоминает элитный европейский пригород в окружении сосновых лесов — с чистым
воздухом и всего в 19 км от Москвы.

При проектировании был предусмотрен выход с каждого участка в зону отдыха или на канал. Сегодня это одно из самых эксклюзивных мест Подмосковья с точки зрения благоустройства.

Площадь поселка 285 га, 62 из них занимают зеленые парки, скверы и прогулочные аллеи. По ним можно часами гулять и наслаждаться ландшафтом, вдохновленным красотой лучших парков мира: Hyde Park, Юй Юань, Версаля, виллы д’Эсте. В Миллениум парк проложено 10 рукотворных каналов, объединяющих 9 кварталов поселка, разбито 5 парков – парк «Остров», парк «Трех озер», парк «Усадьба», парк «Лабиринт», парк «Круглое озеро». И это, не считая бульварных ландшафтов, 9 прогулочных зон, а также беседок, скульптур других
построек, украшающих набережные. Каждому парковому ансамблю присуща своя тематика.

о поселке
  • Класс:  элитный
  • Год сдачи: 2018
  • Дороги: из брусчатки
  • Газ: магистральный
  • Канализация: центральная
  • Водоснабжение: центральное
  • Электричество: да
  • Огороженный периметр: да
  • Круглосуточная охрана: да
инфраструктура
  • Детский сад, школа
  • Детские и спортивные площадки
  • Пропускная система
  • Парковки
  • Рестораны
  • Фитнес-центр
  • Магазины
  • Места для отдыха и парковые зоны
  • Бассейн

дом находится в ПОСЕЛке «миллениум парк», где есть
ВСЕ, что нужно для ЗАГОРОДНОЙ
ЖИЗНИ

УДОБНАЯ ТРАНСПОРТНАЯ ДОСТУПНОСТЬ

Время до МКАД на машине — 35 минут при загруженности дорог 7-8 баллов по Яндексу. За час вы доберетесь до центра Москвы.

ПРЕСТИЖНОЕ НАПРАВЛЕНИЕ
Поселок «Миллениум Парк» расположен в северо-западной части Подмосковья. Этот район известен не только своей восхитительной природой, но и культурными объектами.
отличная экология

Близость лесных массивов и Истринского водохранилища делают эти места одними из самых благоприятных для проживания.
РАЗВИТАЯ ИНФРАСТРУКТУРА
В поселке создана современная и безопасная инфраструктура для идеальной жизни — 5 парков, 7 озер, детские и спортивные площадки, ресторан авторской кухни, белоснежный пляж и цветущие сады.

ПОСЕЛОК «миллениум парк» РАСПОЛОЖЕН В САМОМ ЭКОЛОГИЧЕСКИ ЧИСТОМ РАЙОНЕ ПОДМОСКОВЬЯ

Коттеджный поселок «Миллениум Парк» находится в Истринском районе в 25 км от МКАД по Новорижскому шоссе. Леса здесь занимают 54% всей территории, более 78% – насаждения естественного происхождения. Природа района необычайно разнообразна: здесь есть и холмистые участки, и равнины, и реки. Есть Истринское водохранилище, на котором любят отдыхать летом местные жители и гости из ближайших районов. Есть несколько минеральных источников. В этом районе нет крупных промышленных предприятий, а загрязнение атмосферы не превышает 1% от общих выбросов МО. Благодаря отличной экологической обстановке, живописным видам и хорошей инфраструктуре поселок «Миллениум Парк» — идеальное место для жизни и отдыха на природе.
чистый воздух

Воздух в этом районе считается наиболее чистым благодаря отсутствию крупных промышленных предприятий и западной розе ветров. Уровень загрязнения воздушной среды основными вредными веществами находится ниже норм ПДК.

высокая лесистость

54% территории Истринского района занимают хвойные леса. Лес большей частью состоит из мелколиственных пород, ели и сосны. Лесные массивы Истринского района отнесены к 2-ой группе и выполняют санитарно-гигиенические и оздоровительные функции.


Обилие водоемов

Самым крупный водоем на этой территории — Истринское водохранилище площадью 33 кв.км. Главной рекой является Истра с притоком Малая Истра. Помимо этого, протекает ещё несколько относительно значительных рек: Болденка, Разварня, Тростня, Молодильня (приток Малой Истры), Дарья. Речная сеть района относится к благополучным, а средние концентрации загрязняющих веществ в них не превышают 0,5-4 ПДК.

нет вредных производств
На территории района работает небольшое количество предприятий и нет вредных производств. Поэтому промышленность не влияет негативно на природу, как, например, на востоке и юго-востоке Московской области, где сосредоточена основная часть вредных производств.

 В ПОСЕЛКЕ ЕСТЬ ВСЕ ИНЖЕНЕРНЫЕ КОММУНИКАЦИИ, ИНТЕРНЕТ,
ОХРАНА И СЕРВИСНАЯ СЛУЖБА


ЦЕНТРАЛЬНОЕ ВОДОСНАБЖЕНИЕ

Вода высокого качества — в любое время и в нужном количестве. Многоступенчатая очистка воды позволяет без опасений использовать ее для любых нужд в доме.

ЦЕНТРАЛЬНАЯ КАНАЛИЗАЦИЯ

Никаких септиков на участке. Вам не придется решать проблемы с отводом использованной воды и обслуживанием коммуникаций. Пользуйтесь водой и канализацией — как и в городе!

ГАЗИФИКАЦИЯ ПОСЕЛКА
Поселок «Миллениум» подключен к магистральному газу. Сложные согласования и подключение газа в доме не требуются. В поселке — стабильное и безопасное газоснабжение.
ОПТИКОВОЛОКОННЫЙ ИНТЕРНЕТ
Пользуйтесь высокоскоростным интернетом в любое время и в неограниченном количестве. Высокая скорость передачи данных и превосходное качество связи гарантированы.
СВОЯ УПРАВЛЯЮЩАЯ КОМПАНИЯ
В КП «Миллениум Парк» есть своя управляющая компания, которая проводит профилактические работы, следит за коммуникациями и придет на помощь, если что-то вышло из строя.
Охрана
На территории поселка действует пропускной режим, проводится постоянный мониторинг ситуации. Сотрудники охраны поселка быстро придут на помощь в случае ЧП и вызовут экстренные службы, если это нужно. 

хотите построить дом по индивидуальному проекту?

Оставьте заявку – наш эксперт перезвонит и ответит на все вопросы!

CRM-форма появится здесь