современная классика

мини вена

ЗАКАЗАТЬ ЗВОНОК

Мини вена


Двухэтажный классический дом с окнами в пол и утепленной мансардой — идеальный вариант для большой семьи. Планировкой предусмотрено 6 спален, спортзал и домашний кинотеатр для семейных вечеров. Со стороны внутреннего двора — просторная терраса и балкон с видом на участок.

Для отделки фасада можно выбрать один из двух вариантов: натуральный светлый камень или декоративный кирпич. Для облицовки цоколя предусмотрен темный гранит, и в тон ему — фальцевая кровля.

экстерьер дома 

с облицовкой камнем


экстерьер дома 

с облицовкой кирпичом


поэтажные планы


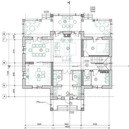
План первого этажа 144,1 кв. м

Название помещенияПлощадь
Гардеробная8,9 кв. м
Кладовая4,1 кв. м
Гостиная37,1 кв. м
Спальня12,9 кв. м
Коридор10 кв. м
Санузел3,5 кв. м
Постирочная7,4 кв. м
Столовая20 кв. м
Кухня18,6 кв. м
Терраса14,9 кв. м

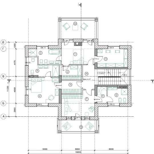
План второго этажа 126,6 кв. м

Название помещенияПлощадь
Спальня16,1+17,8+18,1 кв. м
Гардеробная7,2+6+3,6+12,9 кв. м
Санузел9,6+9,7+7,3 кв. м
Коридор9,1 кв. м
Балкон5,6+3,6 кв. м

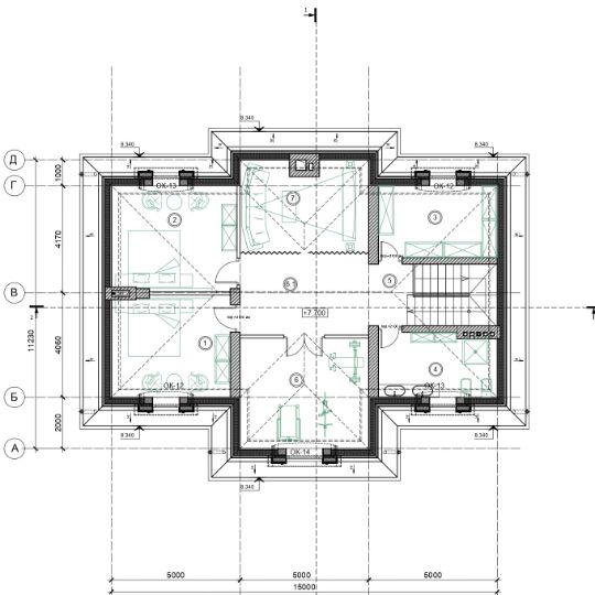
План мансардного этажа 112,5 кв. м

Название помещенияПлощадь
Спальня16,6+18,3 кв. м
Кладовая11,6 кв. м
Санузел10 кв. м
Коридор4+16 кв. м
Спортзал19,8 кв. м
Кинотеатр16,2 кв. м

Хотите заказать строительство дома по проекту «Мини Вена»?


CRM-форма появится здесь