Элегантность и комфорт

Проект «Палладио» воплощает гармонию классической архитектуры и современных представлений о комфорте. Его фасад, облицованный дагестанским известняком с тонкой барельефной резьбой, обладает уникальным характером. Просторная терраса, примыкающая к кухне-столовой, создана для приятного отдыха и семейных трапез на свежем воздухе. Четыре спальни, кабинет и обилие естественного света через панорамные окна создают исключительно комфортную среду. Дополнительное удобство обеспечивает просторный отдельный гараж.

605 м2
площадь дома

Планировочные решения

Дом и отдельно стоящий гараж спроектированы как единый архитектурный комплекс с четким функциональным разделением. Такое решение делает эксплуатацию удобной, сохраняет приватность и обеспечивает чистое, упорядоченное восприятие всей застройки. Общественная зона первого этажа органично связана с террасой и открытой частью участка, создавая плавный переход между интерьером и внешним пространством. На втором этаже расположена приватная часть — мастер-блок и спальни, обеспечивающие тишину и уединение. Гараж на два автомобиля дополнен техническими и вспомогательными помещениями и логично интегрирован в общую структуру участка.

Мастер-план

Генеральный план отражает продуманную структуру дома и участка. Здесь создано комфортное и функциональное пространство для жизни, отдыха и хранения, где архитектура и планировка работают как единое целое.

Планировка первого этажа

Первый этаж общей площадью 331 м² – продуманное пространство для семейного отдыха и быта. Его сердцем стала объединенная кухня-столовая-гостиная: светлая, просторная зона с панорамными окнами. Прямой выход из гостиной ведет на террасу во дворе — идеальное место для барбекю и приема гостей. Дополняют инфраструктуру этажа кабинет, большая гардеробная, постирочная и современная котельная, создавая все условия для комфортной жизни.

Название помещенияПлощадь
Холл49,8+5,98 кв. м
Кабинет19,37 кв. м
Гардеробная6,34+21,86 кв. м
Санузел6,13+1,89 кв. м
Постирочная8,83 кв. м
Столовая-гостиная65,98 кв. м
Кухня11,45 кв. м
Котельная11,73 кв. м
Спальня20,20 кв. м
Ванная13,09 кв. м
Персонал6,27 кв. м
Гараж56,97 кв. м
Склад13,71 кв. м
Спальня персонала11,5 кв. м

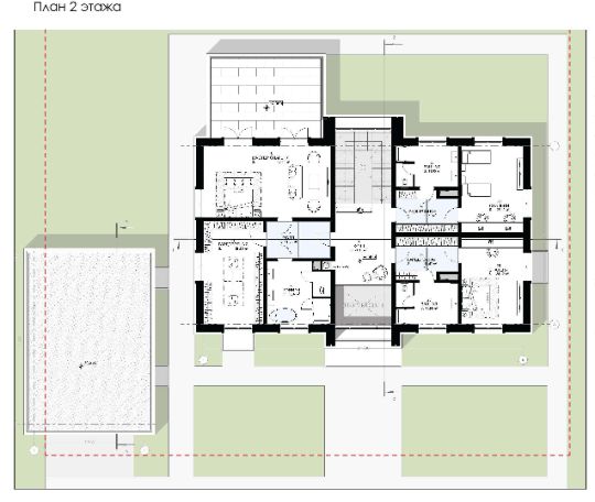
Планировка второго этажа

Второй этаж имеет площадь 219 м². Это территория приватности и комфорта. Его центром служит просторная мастер-спальня с собственной ванной комнатой премиум-класса, большой гардеробной и выходом на балкон-террасу с прекрасным видом. Три дополнительные спальни, расположенные для максимального уединения, обеспечивают личное пространство для всех членов семьи. Одна из них имеет отдельную ванную, а две другие — общую стильную ванную комнату. Такая планировка, в сочетании с элегантной отделкой, создает идеальный баланс личного комфорта и общего удобства.

Название помещенияПлощадь
Холл21,18+11,01 кв. м
Гардеробная28,83+11,52+11,52 кв. м
Мастер спальня42,47 кв. м
Ванная17,92 кв. м
2 спальни25,12+25,12 кв. м
2 ванных11,9+11,9 кв. м

План гаража

Отдельно стоящий гараж рассчитан на размещение двух автомобилей и дополнен продуманными функциональными помещениями. Здесь предусмотрены две вместительные кладовые, где достаточно места для хранения инструментов, шин, запчастей и других необходимых автомобильных принадлежностей. Для вашего удобства - отдельный вход в гараж, а также независимый внешний вход в кладовую. Два отдельных выезда из гаража исключают маневрирование и ожидание.

Название помещенияПлощадь
Гараж56,97 кв. м
Спальня персонала 11,5  кв. м
Склад13,71 кв. м

Конструктивные решения

Конструктивные решения дома разработаны с учетом надежности, долговечности и стабильной эксплуатации. Все элементы конструкции работают как единая система, обеспечивая прочность дома, энергоэффективность и комфорт на протяжении всего срока службы.

Монолитная железобетонная плита в основании

Она формирует жесткое и равномерно нагруженное основание. Такое решение обеспечивает высокую устойчивость конструкции, минимизирует риск деформаций и подходит для участков с различными типами грунтов. Плита работает как единый элемент, повышая надежность здания и создавая прочную основу для всего дома.

Стены из керамических блоков Porotherm

Наружные конструкции обеспечат прочность и долговечность здания, а также высокую энергоэффективность. Они создадут комфортный микроклимат внутри дома и помогут поддерживать оптимальную температуру круглый год. Внутренние перегородки из керамики улучшат звукоизоляцию и позволят реализовать гибкую планировку помещений.

Плоская кровля с использованием технологичной EPDM-мембраны
Кровля будет выполнена по железобетонному основанию с надежной гидроизоляцией и утеплением. Использование EPDM-мембраны обеспечит долговечность и защиту от протечек. Такая конструкция сохранит чистоту фасадов, упростит эксплуатацию инженерного оборудования и создаст комфортные условия для проживания.
Монолитные железобетонные перекрытия
Межэтажные перекрытия будут выполнены из монолитного железобетона, что обеспечит жесткость всей конструкции. Они смогут выдерживать значительные нагрузки и сохранять устойчивость дома. Такая система перекрытий даст свободу для планировки помещений и интеграции инженерных сетей.

Закажите звонок эксперта, чтобы узнать больше о проекте «Палладио»


CRM-форма появится здесь
Cookie-файлы
Настройка cookie-файлов
Детальная информация о целях обработки данных и поставщиках, которые мы используем на наших сайтах
Аналитические Cookie-файлы Отключить все
Технические Cookie-файлы
Другие Cookie-файлы
Мы используем файлы Cookie для улучшения работы, персонализации и повышения удобства пользования нашим сайтом. Продолжая посещать сайт, вы соглашаетесь на использование нами файлов Cookie. Подробнее о нашей политике в отношении Cookie.
Принять все Отказаться от всех Настроить
Cookies