воплощение стиля и комфорта

Вилла Гамма — образец гармоничного сочетания функциональности и уюта. Ключевой элемент проекта — панорамное остекление, которое кардинально меняет восприятие пространства. Благодаря огромным окнам, дом наполняется естественным светом, визуально расширяется, а виды на окружающий ландшафт становятся частью интерьера.
Функциональность здесь продумана до мелочей: каждая деталь, каждое помещение создано для вашего комфорта. Панорамное остекление — инновационный подход к созданию светлого и просторного жилья, выделяющий виллу Гамма среди других проектов. 

526 м2
площадь дома

ГЕНЕРАЛЬНЫЙ ПЛАН

ОБЩАЯ ПОЩАДЬ ДОМА 526 КВ.М

ПЛАН ПЕРВОГО ЭТАЖА

ПОЛЕЗНАЯ ПЛОЩАДЬ 327 КВ.М

Вилла Гамма отличается тщательно продуманной планировкой. Входная зона — просторный холл с отдельной гардеробной.
Планировка организована так, чтобы обеспечить свободу перемещения и функциональность каждого пространства: справа расположена кухня-столовая, с быстрым доступом к зоне барбекю. Прямо — выход в гостиную с панорамными окнами, почти по всему периметру. Этот функциональный прием значительно увеличивает естественное освещение и создает ощущение единения с окружающим ландшафтом. Для гостей предусмотрен отдельный блок со спальней и собственным санузлом. Есть помещение для персонала с постирочной, санузлом и комнатой отдыха, с отдельным входом. Доступ в котельную и кладовую осуществляется из гаража.  

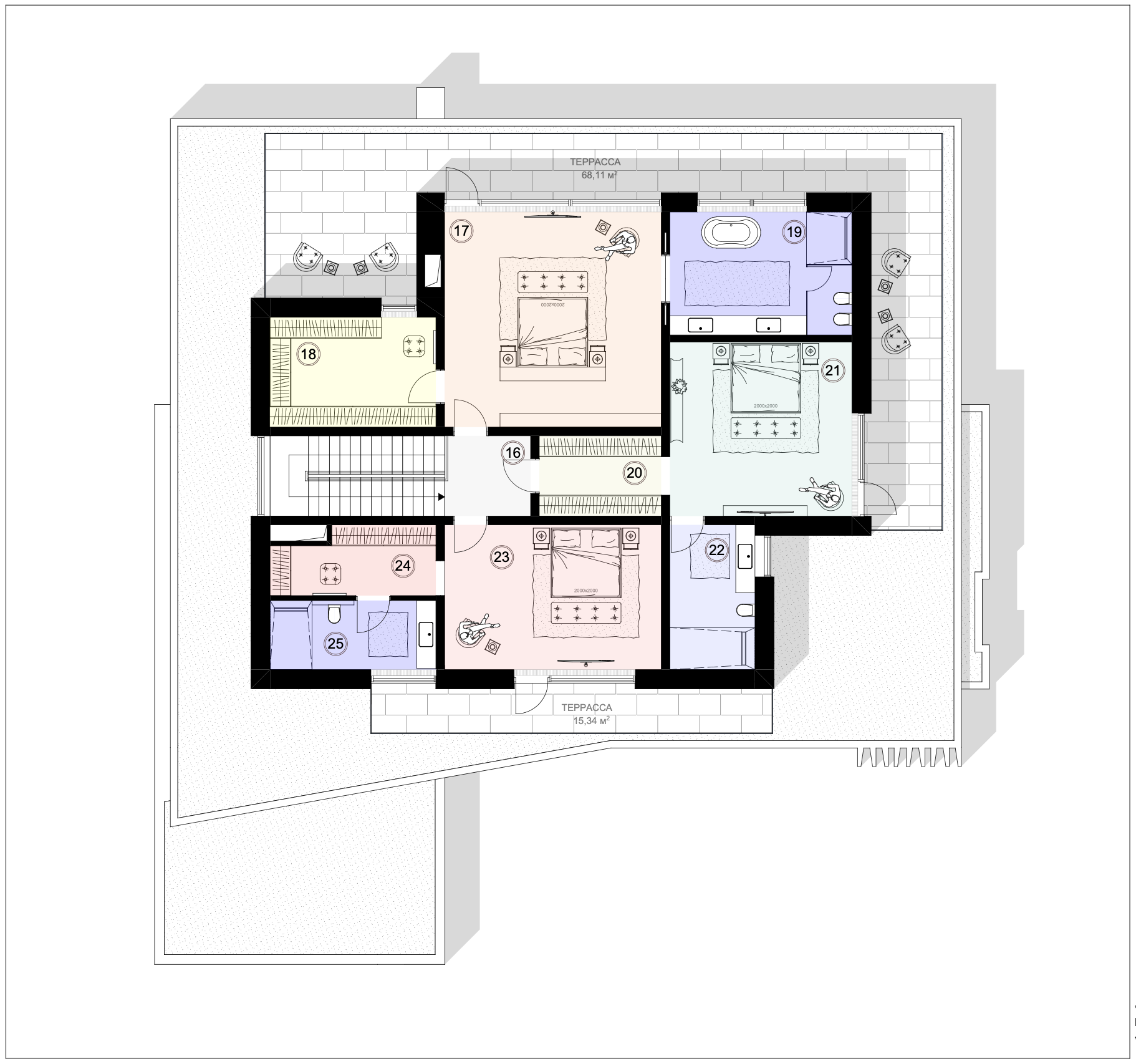
ПЛАН ВТОРОГО ЭТАЖА

ПОЛЕЗНАЯ ПЛОЩАДЬ 165 КВ.М

Второй этаж проекта Гамма — это личное пространство, созданное для комфортного отдыха и уединения. Здесь расположены просторные апартаменты. Они включают в себя мастер-спальню и две дополнительные спальни. Одна из комнат выделяется своей роскошью: кроме собственного санузла, она оборудована вместительной гардеробной и имеет выход на отдельную террасу.
Большая терраса, общая для всех спален второго этажа, прекрасно подходит для обустройства зоны отдыха. Планировка виллы обеспечивает каждому члену семьи необходимый уровень комфорта и приватности. 

КОНСТРУКТИВНЫЕ ПРЕИМУЩЕСТВА 


Вентилируемый фасад

Применение вентилируемого фасада — инновационное решение. Оно гарантирует высокую энергоэффективность и долговечность конструкции. Система характеризуется простым техническим обслуживанием, эффективной теплоизоляцией и естественной вентиляцией. Фасад устойчив к экстремальным погодным условиям. Модульный принцип позволяет производить замену отдельных элементов без нарушения целостности фасада.

МОНОЛИТНЫЕ ЖЕЛЕЗОБЕТОННЫЕ СТЕНЫ

Монолитные железобетонные стены создают конструкции высокой прочности. Они дают минимальную усадку, способствуют сокращению сроков начала внутренних отделочных работ. Идеальная геометрия стен, отсутствие швов и высокая ровность поверхностей значительно снижают затраты на отделку и потребность в материалах.

ПЛОСКАЯ КРОВЛЯ С  ТЕХНОЛОГИЧНОЙ EPDM-МЕМБРАНОЙ
Проект предусматривает устройство плоской кровли с применением высокотехнологичной EPDM-мембраны. Минимальная парусность конструкции гарантирует высокую ветроустойчивость. Гидроизоляционное покрытие из EPDM-мембраны обеспечивает надежную защиту от протечек благодаря своим высоким эксплуатационным характеристикам и отсутствию пор. Исключается разрушение под воздействием влаги. Система подогрева воронок предотвращает образование наледи и обеспечивает бесперебойный водоотвод в зимний период.
ПЕРЕКРЫТИЕ ИЗ МОНОЛИТНЫХ ЖЕЛЕЗОБЕТОННЫХ ПЛИТ
Монолитные железобетонные плиты перекрытия также отвечают за прочность и геометрию конструкции. Отличные звукоизоляционные свойства и высокая готовность поверхности к финишной отделке минимизируют затраты на последующие работы. Материал не подвержен коррозии и гниению. А значит, гарантирует долговечность и сохранение эксплуатационных характеристик дома на протяжении всего срока службы.

ПОЛУЧИТЕ ПРЕЗЕНТАЦИЮ
ПРОЕКТа «гамма»


CRM-форма появится здесь