АРХИТЕКТУРА ФУНКЦИОНАЛЬНОГО КОМФОРТА

Проект Омега предлагает уникальное сочетание простора и комфорта. Второй свет визуально увеличивает высоту потолков и создает ощущение воздушности. Обширное панорамное остекление – почти 427 кв.м., наполняет интерьер естественным светом, создавая теплую и уютную атмосферу в любое время суток. 

Благодаря продуманной планировке, дом идеально подходит как для семейного проживания, так и для работы. Вечером, архитектурная подсветка выгодно подчеркивает стильный дизайн дома, превращая его в эффектный архитектурный объект. 

407 м2
площадь дома

ГЕНЕРАЛЬНЫЙ ПЛАН

ОБЩАЯ ПОЩАДЬ ДОМА 407 КВ.М

ПЛАН ПЕРВОГО ЭТАЖА

ПОЛЕЗНАЯ ПЛОЩАДЬ 277 КВ.М

Первый этаж спроектирован для максимального комфорта. В просторном холле, помимо гардеробной, расположен отдельный кабинет – идеальное место для работы или уединения, а также гостевой санузел. 

Центральное место занимает объединенное пространство гостиной, кухни и столовой, наполненное естественным светом благодаря панорамным окнам и высоким потолкам.

Для релаксации и поддержания здоровья предусмотрен отдельный комплекс: СПА-зона с джакузи, сауна и собственный спортзал, дополненные выходом на отдельную террасу для отдыха на свежем воздухе. Такое зонирование обеспечивает как приватность, так и свободу перемещения по дому. 

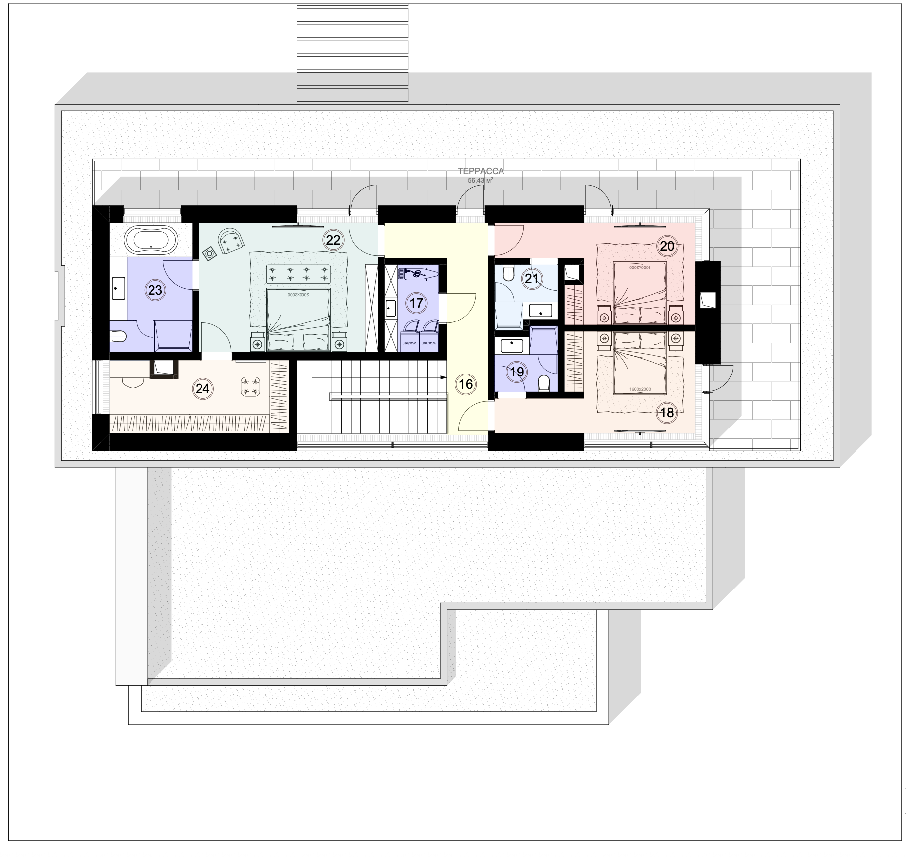
ПЛАН ВТОРОГО ЭТАЖА

ПОЛЕЗНАЯ ПЛОЩАДЬ 100 КВ.М

Второй этаж отведен под приватные апартаменты. Мастер-спальня с собственной гардеробной и ванной комнатой расположена в одном крыле, обеспечивая максимальный комфорт и уединение. В другом крыле находятся две дополнительные спальни, каждая со своим санузлом. Особую привлекательность дому придает большая открытая терраса, доступная из каждой спальни. Это идеальное место для отдыха и созерцания окружающих пейзажей, где можно наслаждаться утренним кофе. Для удобства на втором этаже также расположена постирочная. 

конструктивные преимущества


Вентилируемый фасад

Вилла Омега оснащена вентилируемым фасадом – современным и технологичным решением, обеспечивающим эффективную теплоизоляцию и естественную вентиляцию. Система проста в обслуживании и устойчива к любым погодным условиям, гарантируя комфортный микроклимат и долговечность конструкции.
Модульная конструкция вентилируемого фасада позволяет заменять отдельные элементы без демонтажа всей системы, минимизируя затраты на ремонт и поддержание дома в отличном состоянии на протяжении многих лет.  

МОНОЛИТНЫЕ ЖЕЛЕЗОБЕТОННЫЕ СТЕНЫ

Монолитные железобетонные стены обеспечивают высокую прочность и минимальную усадку дому. Это позволяет начать внутренние отделочные работы значительно быстрее, чем при использовании других технологий.
Идеально ровные стены без швов существенно сокращают расходы на отделку и материалы, делая процесс более эффективным и экономичным. А также стены из монолитного железобетона — гарантия стабильного микроклимата внутри дома. 

ПЛОСКАЯ КРОВЛЯ С ИСПОЛЬЗОВАНИЕМ ТЕХНОЛОГИЧНОЙ EPDM-МЕМБРАНЫ
Стильная плоская кровля обеспечивает дому лаконичный и современный внешний вид. Минимальная парусность конструкции гарантирует высокую устойчивость к сильным ветрам. Надежная гидроизоляция достигается за счет долговечной EPDM-мембраны, устойчивой к любым погодным воздействиям и исключающей возможность протечек.
Дополнительное преимущество – система подогреваемых воронок, без образования наледи зимой и с бесперебойным стоком воды в любое время года. Это сочетание эстетики и функциональности подтверждает высокий уровень качества проекта.

ПЕРЕКРЫТИЕ ИЗ МОНОЛИТНЫХ ЖЕЛЕЗОБЕТОННЫХ ПЛИТ
Железобетонные плиты перекрытия в проекте Омега обеспечивают высокую прочность и идеально ровную поверхность. Это значительно упрощает и ускоряет финишную отделку, исключая необходимость в дополнительных подготовительных работах.
Железобетонные перекрытия обладают отличной звукоизоляцией и поддерживают долговечность конструкции дома. Устойчивость к коррозии и гниению гарантирует сохранение эксплуатационных параметров проекта на десятилетия.

ПОЛУЧИТЕ ПРЕЗЕНТАЦИЮ

проекта «Омега»


CRM-форма появится здесь