СовременнАЯ, минималистичНАЯ, функциональнАЯ

Вилла спроектирована с акцентом на безупречный стиль и практичность. Элегантность чистых линий гармонично сочетается с использованием премиальных материалов. Здесь создана атмосфера роскоши и комфорта. Функциональная планировка каждого помещения продумана до мелочей – максимальное удобство для жизни, работы и отдыха. Каждый квадратный метр работает на ваш комфорт, позволяя полностью насладиться загородной жизнью в идеально организованном месте.

361 м2
площадь дома

ГЕНЕРАЛЬНЫЙ ПЛАН

ОБЩАЯ ПОЩАДЬ ДОМА 361 КВ.М

ПЛАН ПЕРВОГО ЭТАЖА

ПОЛЕЗНАЯ ПЛОЩАДЬ 228 КВ.М

На первом этаже дома Орион объединены общие зоны. Непосредственно у входа расположен кабинет с панорамным окном, выходящем на тихую сторону дома. Просторный холл плавно переходит в обширную зону столовой, гостиной и современной кухни. Для удобства и максимальной функциональности предусмотрены отдельные технические помещения: котельная, вместительная кладовая и практичная постирочная. Они расположенные так, чтобы не нарушать гармонию основных жилых зон.

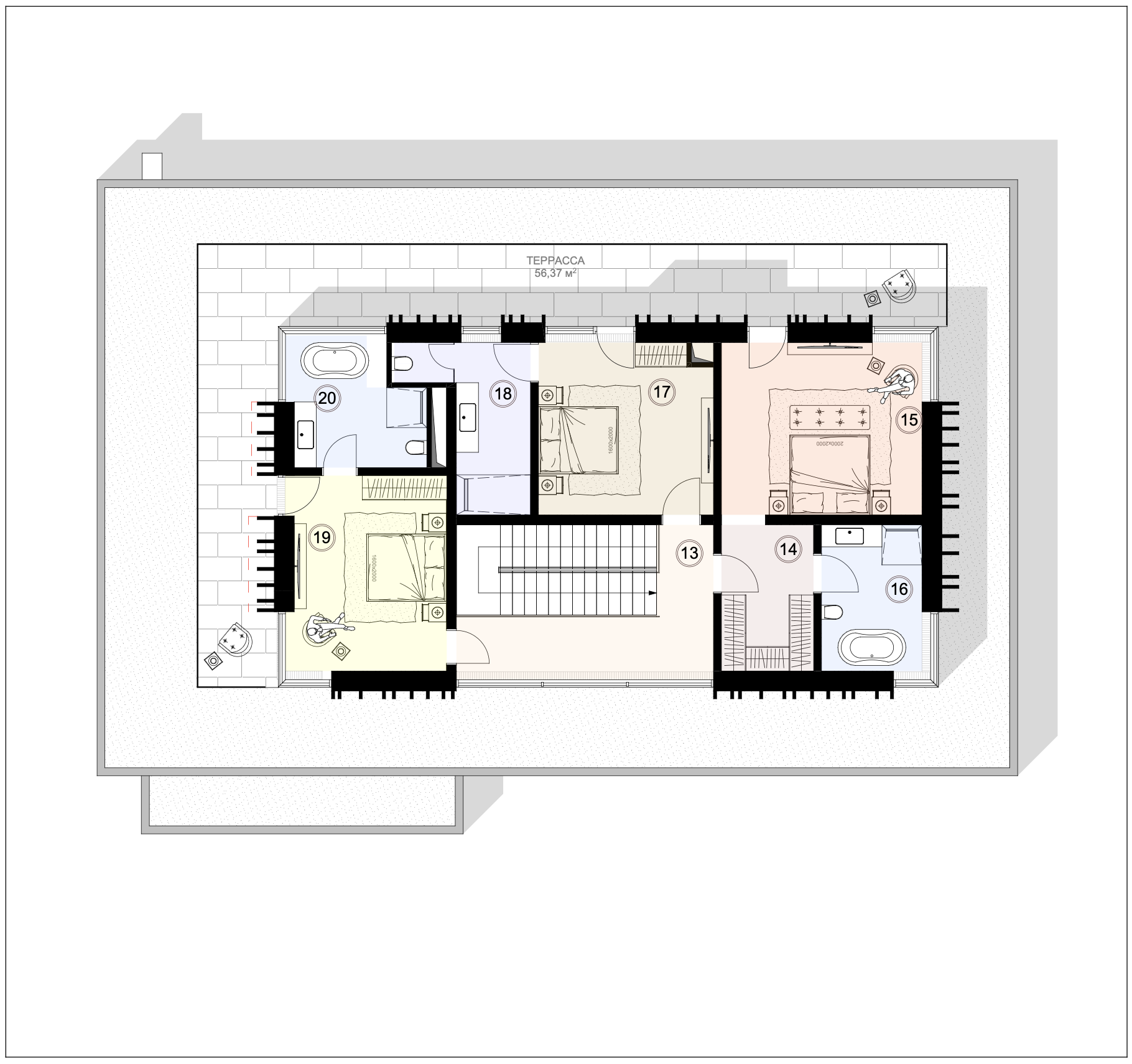
ПЛАН ВТОРОГО ЭТАЖА

ПОЛЕЗНАЯ ПЛОЩАДЬ 112 КВ.М

Второй этаж полностью отведен под личные комнаты. Две спальни площадью 19 и 18 кв.м., расположенные в одном крыле, идеально подходят для детских или гостевых комнат. Каждая снащена собственным санузлом. Центральное место занимает роскошная мастер-спальня с просторной ванной комнатой и удобной гардеробной. Открытая терраса приглашает насладиться теплом солнечных лучей. Это уютная зона отдыха на свежем воздухе.

КОНСТРУКТИВНЫЕ ПРЕИМУЩЕСТВА 


Вентилируемый фасад

Вентилируемый фасад — современная технология, которая делает дом теплее и долговечнее. За ним легко ухаживать, он защищает от непогоды, а при необходимости ремонт можно провести быстро и без лишних хлопот, заменив только поврежденные части.

МОНОЛИТНЫЕ ЖЕЛЕЗОБЕТОННЫЕ СТЕНЫ

Монолитные железобетонные стены обеспечивают прочность, ровность и скорость строительства. Они не дают трещин, поэтому отделка будет быстрой и недорогой.

ПЛОСКАЯ КРОВЛЯ С ИСПОЛЬЗОВАНИЕМ ТЕХНОЛОГИЧНОЙ EPDM-МЕМБРАНЫ
Стильная плоская крыша с современной EPDM-мембраной — надежная защита от протечек и непогоды. Мембрана не боится ни дождя, ни снега, а подогрев воронок предотвращает образование льда зимой.
ПЕРЕКРЫТИЕ ИЗ МОНОЛИТНЫХ ЖЕЛЕЗОБЕТОННЫХ ПЛИТ
Перекрытия из железобетонных плит позволяют создать прочные основания. Материал хорошо поглощает звуки и обладает долговечностью. Плиты идеально ровные, не требуют дополнительной обработки и прослужат вам долгие годы.

ПОЛУЧИТЕ ПРЕЗЕНТАЦИЮ
ПРОЕКТа «Орион»


CRM-форма появится здесь