современный стиль

дом в «Миллениум Парк»

городской округ Истра, Московская область (23км. от МКАД)
ЗАКАЗАТЬ ЗВОНОК

Автор проекта — архитектурное бюро SL*project


Двухэтажная вилла в современном стиле площадью 2114,8 кв.м. построена компанией Unistroy по проекту архитектурного бюро SL Project. В ней продумано все до мелочей для комфортного проживания и времяпрепровождения с семьей и друзьями. Здесь 6 спален, несколько гардеробных, гараж на 3 автомобиля и парковка на 2-3 машиноместа, несколько помещений для дружеских встреч, бассейн, зона СПА, спортзал, несколько террас на первом и втором этажах, небольшие апартаменты для персонала и даже зимний сад.

Первое впечатление, которое вызывает эта вилла, это впечатление умеренной роскоши и стиля. Нейтральные и мягкие оттенки и отсутствие «броских» деталей делают внешний вид коттеджа лаконичным и запоминающимся. Внутри — не менее презентабельно. Высокие потолки, большая площадь панорамного остекления и второй свет делают дом просторным и светлым.

На фасаде — крупноформатный керамогранит, натуральный мрамор, деревянные панели. Все это, а также искусственный водоем у парадного входа не только придает дому и участку уютный вид, но и гармонично вписывает коттедж в окружающий живописный ландшафт. 


ПОЭТАЖНЫЕ ПЛАНЫ


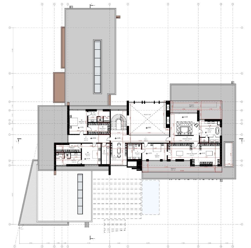
1-Й ЭТАЖ

Значительную часть площади занимает просторная гостиная, кухня-столовая и отдельное помещение для встреч с друзьями. На этаже две гардеробных и две кладовые. Есть игровая комната и кабинет. Почти все левое крыло занимают гостевые спальни, отдельный санузел и ванная. В дальней части дома — зоны релакса: СПА, хаммам, бассейн.

Площадь всех помещений – 887,8 кв.м.

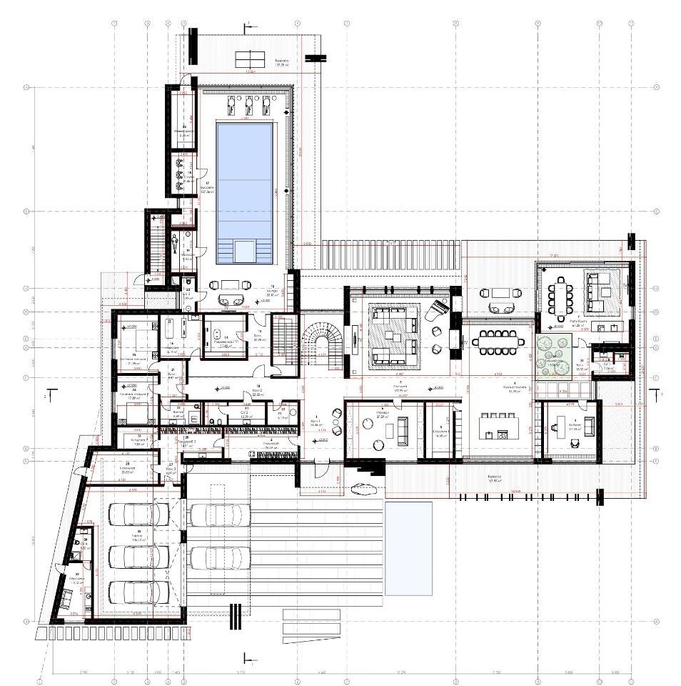
2-Й ЭТАЖ

Второй этаж — полностью личное пространство владельцев дома. Здесь мастер-спальня, которая прекрасно подойдет родителям, и 3 спальни с отдельными санузлами и гардеробными, которые можно обустроить в качестве детских. В каждой комнате есть отдельный выход на собственную террасу. В холле есть место под небольшую библиотеку.

Площадь этажа – 318,6 кв.м.

ПОСАДКА ДОМА НА УЧАСТКЕ

Вилла занимает ⅔ всего участка — левую и центральную его часть. С передней стороны — со стороны дороги — предусмотрена входная группа, терраса, гараж и открытая парковка и декоративный водоем. Задний двор, скрытый от посторонних глаз фасадом, вы можете оформить так, как хочется именно вам. На нем достаточно пространства для полноценного сада, спортивных или детских площадок, веранды и зоны барбекю или других построек.



КОНСТРУКТИВНЫЕ ПРЕИМУЩЕСТВА 


МОНОЛИТНАЯ ФУНДАМЕНТНАЯ ПЛИТА

Она создает устойчивое и надежное основание даже на рыхлых и подвижных грунтах, во время пучения или движения грунтовых вод. При таком фундаменте вес дома равномерно распределяется по всей площади и также равномерно передается на грунт.

ЖЕЛЕЗОБЕТОННЫЕ СТЕНЫ

Они прочные и обладают минимальной усадкой – можно быстрее начать внутреннюю отделку. А еще такие стены очень ровные и не имеют швов, что существенно снижает расходы на отделочные работы и материалы.

ВНУТРЕННИЕ НЕСУЩИЕ СТЕНЫ И ПЕРЕГОРОДКИ ИЗ ПОЛНОТЕЛОГО КИРПИЧА
Они обеспечивают хорошую теплоизоляцию и шумоподавление – вы сможете спокойно поработать в кабинете или насладиться покоем в SPA, даже если дети устроили «музыкальный концерт» в соседней комнате. А еще такие стены позволяют закреплять тяжелые предметы – водонагреватели большого объема и др.
ПЛОСКАЯ КРОВЛЯ С ИСПОЛЬЗОВАНИЕМ ТЕХНОЛОГИЧНОЙ EPDM-МЕМБРАНЫ
Плоская крыша отличается лаконичным и стильным дизайном. Она устойчива к сильным ветрам за счет минимальной парусности конструкции. Для надежной гидроизоляции здесь будет использована EPDM мембрана. Она устойчива к любым погодным факторам и надежно защищает крышу от протечек, а благодаря отсутствию пор – не разрушается под воздействием влаги.
ПЕРЕКРЫТИЕ ИЗ МОНОЛИТНЫХ ЖЕЛЕЗОБЕТОННЫХ ПЛИТ
Конструкция получается прочной и ровной, хорошо изолирует звуки и не требует серьезной доработки перед финишной отделкой. Железобетон не подвержен коррозии и гниению, сохраняет свои характеристики на протяжении десятилетий, что гарантирует долгий срок эксплуатации дома.
СИСТЕМА ВЕНТФАСАДА
Самое технологичное решение для фасада, которое повышает рыночную стоимость дома. Такая система обеспечивает эффективную теплоизоляцию и естественную вентиляцию всего «пирога», устойчива к любым погодным условиям и аномалиям, проста в обслуживании. При необходимости вы можете заменить отдельные элементы вентфасада без демонтажа всей конструкции.

Коттеджный
поселок
«миллениум парк»

площадь

285 Га

удаленность от мкад

19 км

элитный поселок на новой риге

Поселок Миллениум Парк находится в 19 км от МКАД и открывает доступ к богатой инфраструктуре Новой Риги. Здесь проведены все коммуникации, за чистотой следит управляющая компания, а безопасность обеспечивает круглосуточная охрана и видеонаблюдение. На территории обустроены досуговые площадки для детей и взрослых. Его атмосфера напоминает элитный европейский пригород в окружении сосновых лесов — с чистым
воздухом и всего в 19 км от Москвы.

При проектировании был предусмотрен выход с каждого участка в зону отдыха или на канал. Сегодня это одно из самых эксклюзивных мест Подмосковья с точки зрения благоустройства.

Площадь поселка 285 га, 62 из них занимают зеленые парки, скверы и прогулочные аллеи. По ним можно часами гулять и наслаждаться ландшафтом, вдохновленным красотой лучших парков мира: Hyde Park, Юй Юань, Версаля, виллы д’Эсте. В Миллениум парк проложено 10 рукотворных каналов, объединяющих 9 кварталов поселка, разбито 5 парков – парк «Остров», парк «Трех озер», парк «Усадьба», парк «Лабиринт», парк «Круглое озеро». И это, не считая бульварных ландшафтов, 9 прогулочных зон, а также беседок, скульптур других
построек, украшающих набережные. Каждому парковому ансамблю присуща своя тематика.

о поселке
  • Класс:  элитный
  • Год сдачи: 2018
  • Дороги: из брусчатки
  • Газ: магистральный
  • Канализация: центральная
  • Водоснабжение: центральное
  • Электричество: да
  • Огороженный периметр: да
  • Круглосуточная охрана: да
инфраструктура
  • Детский сад, школа
  • Детские и спортивные площадки
  • Пропускная система
  • Парковки
  • Рестораны
  • Фитнес-центр
  • Магазины
  • Места для отдыха и парковые зоны
  • Бассейн

дом находится в ПОСЕЛке «миллениум парк», где есть
ВСЕ, что нужно для ЗАГОРОДНОЙ
ЖИЗНИ

УДОБНАЯ ТРАНСПОРТНАЯ ДОСТУПНОСТЬ

Время до МКАД на машине — 35 минут при загруженности дорог 7-8 баллов по Яндексу. За час вы доберетесь до центра Москвы.

ПРЕСТИЖНОЕ НАПРАВЛЕНИЕ
Поселок «Миллениум Парк» расположен в северо-западной части Подмосковья. Этот район известен не только своей восхитительной природой, но и культурными объектами.
отличная экология

Близость лесных массивов и Истринского водохранилища делают эти места одними из самых благоприятных для проживания.
РАЗВИТАЯ ИНФРАСТРУКТУРА
В поселке создана современная и безопасная инфраструктура для идеальной жизни — 5 парков, 7 озер, детские и спортивные площадки, ресторан авторской кухни, белоснежный пляж и цветущие сады.

ПОСЕЛОК «миллениум парк» РАСПОЛОЖЕН В САМОМ ЭКОЛОГИЧЕСКИ ЧИСТОМ РАЙОНЕ ПОДМОСКОВЬЯ

Коттеджный поселок «Миллениум Парк» находится в Истринском районе в 25 км от МКАД по Новорижскому шоссе. Леса здесь занимают 54% всей территории, более 78% – насаждения естественного происхождения. Природа района необычайно разнообразна: здесь есть и холмистые участки, и равнины, и реки. Есть Истринское водохранилище, на котором любят отдыхать летом местные жители и гости из ближайших районов. Есть несколько минеральных источников. В этом районе нет крупных промышленных предприятий, а загрязнение атмосферы не превышает 1% от общих выбросов МО. Благодаря отличной экологической обстановке, живописным видам и хорошей инфраструктуре поселок «Миллениум Парк» — идеальное место для жизни и отдыха на природе.
чистый воздух

Воздух в этом районе считается наиболее чистым благодаря отсутствию крупных промышленных предприятий и западной розе ветров. Уровень загрязнения воздушной среды основными вредными веществами находится ниже норм ПДК.

высокая лесистость

54% территории Истринского района занимают хвойные леса. Лес большей частью состоит из мелколиственных пород, ели и сосны. Лесные массивы Истринского района отнесены к 2-ой группе и выполняют санитарно-гигиенические и оздоровительные функции.


Обилие водоемов

Самым крупный водоем на этой территории — Истринское водохранилище площадью 33 кв.км. Главной рекой является Истра с притоком Малая Истра. Помимо этого, протекает ещё несколько относительно значительных рек: Болденка, Разварня, Тростня, Молодильня (приток Малой Истры), Дарья. Речная сеть района относится к благополучным, а средние концентрации загрязняющих веществ в них не превышают 0,5-4 ПДК.

нет вредных производств
На территории района работает небольшое количество предприятий и нет вредных производств. Поэтому промышленность не влияет негативно на природу, как, например, на востоке и юго-востоке Московской области, где сосредоточена основная часть вредных производств.

 В ПОСЕЛКЕ ЕСТЬ ВСЕ ИНЖЕНЕРНЫЕ КОММУНИКАЦИИ, ИНТЕРНЕТ,
ОХРАНА И СЕРВИСНАЯ СЛУЖБА


ЦЕНТРАЛЬНОЕ ВОДОСНАБЖЕНИЕ

Вода высокого качества — в любое время и в нужном количестве. Многоступенчатая очистка воды позволяет без опасений использовать ее для любых нужд в доме.

ЦЕНТРАЛЬНАЯ КАНАЛИЗАЦИЯ

Никаких септиков на участке. Вам не придется решать проблемы с отводом использованной воды и обслуживанием коммуникаций. Пользуйтесь водой и канализацией — как и в городе!

ГАЗИФИКАЦИЯ ПОСЕЛКА
Поселок «Миллениум» подключен к магистральному газу. Сложные согласования и подключение газа в доме не требуются. В поселке — стабильное и безопасное газоснабжение.
ОПТИКОВОЛОКОННЫЙ ИНТЕРНЕТ
Пользуйтесь высокоскоростным интернетом в любое время и в неограниченном количестве. Высокая скорость передачи данных и превосходное качество связи гарантированы.
СВОЯ УПРАВЛЯЮЩАЯ КОМПАНИЯ
В КП «Миллениум Парк» есть своя управляющая компания, которая проводит профилактические работы, следит за коммуникациями и придет на помощь, если что-то вышло из строя.
Охрана
На территории поселка действует пропускной режим, проводится постоянный мониторинг ситуации. Сотрудники охраны поселка быстро придут на помощь в случае ЧП и вызовут экстренные службы, если это нужно. 

хотите построить дом по индивидуальному проекту?

Оставьте заявку – наш эксперт перезвонит и ответит на все вопросы!

CRM-форма появится здесь
Cookie-файлы
Настройка cookie-файлов
Детальная информация о целях обработки данных и поставщиках, которые мы используем на наших сайтах
Аналитические Cookie-файлы Отключить все
Технические Cookie-файлы
Другие Cookie-файлы
Мы используем файлы Cookie для улучшения работы, персонализации и повышения удобства пользования нашим сайтом. Продолжая посещать сайт, вы соглашаетесь на использование нами файлов Cookie. Подробнее о нашей политике в отношении Cookie.
Принять все Отказаться от всех Настроить
Cookies